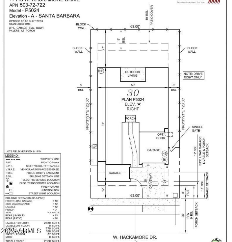
What's Special: Special Incentives | 3-Car Garage | Secondary Bdrm w/ Atch Bath. New Construction - Ready Now! Built by America's Most Trusted Homebuilder. Welcome to the Cascade at 17118 W Hackamore Drive in Asante. Experience desert living with this beautifully designed floor plan featuring a charming courtyard entry that leads into a bright, open-concept great room. The gourmet kitchen boasts 42'' cabinets, a granite single-bowl sink, soft-close drawers, a center island, and a dining area that flows seamlessly to a covered outdoor living space—perfect for entertaining or relaxing. Three bedrooms and two bathrooms thoughtfully placed toward the front of the home.  The luxurious primary suite is tucked away for privacy and features a spa-inspired bath. MLS#6858146 Structural options added include: shower instead of shower tub combo at bathroom 3, paver front porch, garage service door, super shower at primary bathroom and gourmet kitchen. 
 From 163rd Ave go South on 166th Ave, go north on 166th drive. 
 
                                                        Dwelling Type: Residential 
                            Subdivision: Asante Passage 
                            Year Built: 2025, County: N/A 
                            From 163rd Ave go South on 166th Ave, go north on 166th drive.
                        
Listing is courtesy of Taylor Morrison (MLS Only)