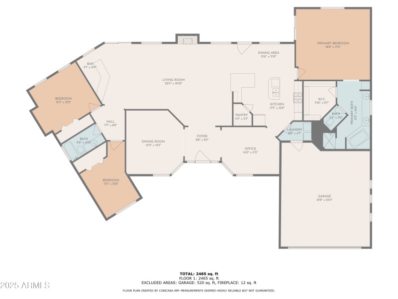
Discover this impressive Clearview Ranch residence, offering over 2500 sq ft of stylish living and exceptional entertaining space. This three-bedroom, two-bathroom home features a dramatic entryway with elegant arches leading to formal dining and living areas, plus a comfortable family room with an eat-in kitchen. The well-appointed kitchen boasts granite counter-tops, extensive cabinetry, a built-in wall oven, and a convenient walk-in pantry. Unwind in the over-sized master suite with direct access to the outdoor living space and a spa-like master bath with a soaking tub, walk-in shower, dual vanities, and a generous walk-in closet. The dedicated wet bar, complete with a pass-through to the patio, makes hosting a breeze. Step outside to enjoy the expansive covered patio, heated pool, and spa, along with two grassy areas and a large side yard with double gated access. Architectural interest abounds in this distinctive home.
East on Manor, S on Clearview Ranch, home is on the right
Dwelling Type: Residential
Subdivision: CLEARVIEW RANCH
Year Built: 1995, County: N/A
East on Manor, S on Clearview Ranch, home is on the right
Listing is courtesy of NextHome Alliance
Sign in to your account to continue