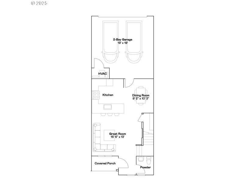
Move-in ready! Welcome to Butternut Creek by Lennar in charming Hillsboro. The new-construction Pioneer plan offers a well-designed layout with the kitchen, dining area, and great room with a fireplace all connected in an open-concept design. Upstairs, a central loft provides flexible space between three bedrooms, including a spacious primary suite with an en-suite bathroom with dual vanities and a spacious walk-in closet. Interior highlights include quartz countertops, shaker-style cabinets, LVP (luxury vinyl plank) flooring in the kitchen and entry way, LVT (luxury vinyl tile) flooring in bathrooms, two-tone interior paint, and landscaping. This home also includes central air conditioning, a refrigerator, washer and dryer, and blinds—all at no extra cost! Butternut Creek is conveniently located just minutes from the Intel campus, Nike, and Reed's Crossing Town Center loaded with shopping and dining options. This brand new community is packed with amenities including a community park with picnic areas, multi-use trails, a splash park, sports court, bike track, open space, dog parks and more. Located on homesite 447, this home is move-in ready. Rendering is artist conception only. Photos are of a similar home, features and finishes will vary. *Below-market rate incentives available when financing with preferred lender.* [Home Energy Score = 10. HES Report at https://rpt.greenbuildingregistry.com/hes/OR10237079]
SW Cornelius Pass to Left on Butternut Creek Pkwy. Welcome Home Center is on the corner of 77th
Dwelling Type: Residential
Subdivision: BUTTERNUT CREEK
Year Built: 2025, County: US
SW Cornelius Pass to Left on Butternut Creek Pkwy. Welcome Home Center is on the corner of 77th
Listing is courtesy of Lennar Sales Corp