Ready for Immediate Move-In! PUMPKIN SPICE MOVE-IN SPECIAL! $399 MOVE-IN, if moved in on or before 10/23/2025 (latest possible move-in date)! Move-In special includes the admin fee and ONE WEEK FREE RENT! $100 paid per month over 10 Months towards security deposit! Prorated rent due with $399 admin fee upon approval! 1st full month of rent is due on NOV 1ST! (Animal fees are not included in this move-in special and are due at move-in if applicable)
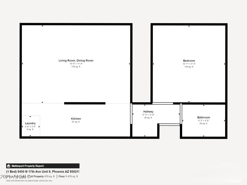
1Bed/1Bath Apt at 19th Ave/Peoria! Apt inc living room, kitchen, 1 bed, 1 bath, tile flooring, ceiling fans, w/d in unit, and full gravel backyard. Kitchen inc refrigerator, stove, microwave and dishwasher. Utilities to stay in the owner's name, billed to tenant in portal.
From I-17 N / Exit 208 toward Peoria Ave / Merge onto Black Canyon Access Rd / Right onto Peoria Ave / Right onto 19th Ave / Left onto W Mountain View Rd / Right onto N 17th Ave / Property on Left
Dwelling Type: Residential Lease
Subdivision: Idle Ease
Year Built: 1964, County: N/A
From I-17 N / Exit 208 toward Peoria Ave / Merge onto Black Canyon Access Rd / Right onto Peoria Ave / Right onto 19th Ave / Left onto W Mountain View Rd / Right onto N 17th Ave / Property on Left
Listing is courtesy of Market Edge Realty, LLC
Sign in to your account to continue