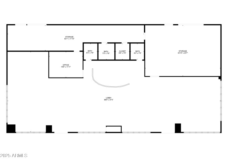
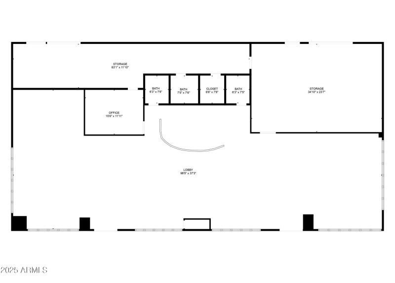
Set on a well-traveled street in Wickenburg, this 5,000 SF commercial building offers strong visibility, a monument sign, and a large parking lot—ideal for businesses looking to establish a solid presence in a growing market. The structure is well-suited for mixed use, combining customer-facing functionality with efficient back-end operations. The front portion of the building features vaulted ceilings and an open layout designed to accommodate retail, showroom, or service-based business. Two guest restrooms are located within the public space for customer convenience, and the overall footprint offers plenty of flexibility for layout customization. In the back, you'll find a generous storage area with two oversized drive-in doors, along with a private office and employee Set on a well-traveled street in Wickenburg, this 5,000 SF commercial building offers strong visibility, a monument sign, and a large parking lotideal for businesses looking to establish a solid presence in a growing market. The structure is well-suited for mixed use, combining customer-facing functionality with efficient back-end operations.
The front portion of the building features vaulted ceilings and an open layout designed to accommodate retail, showroom, or service-based business. Two guest restrooms are located within the public space for customer convenience, and the overall footprint offers plenty of flexibility for layout customization.
In the back, you'll find a generous storage area with two oversized drive-in doors, along with a private office and employee restroompositioned to keep operations running smoothly behind the scenes. This is a practical, well-equipped space for businesses ready to grow in a community-oriented setting.
From US 60/W Wickenburg Way, turn onto N Tegner St. Follow to address on left.
Dwelling Type: Comm/Industry Sale
Subdivision: N/A
Year Built: 2008, County: N/A
From US 60/W Wickenburg Way, turn onto N Tegner St. Follow to address on left.
Listing is courtesy of Tinzie Realty
Sign in to your account to continue