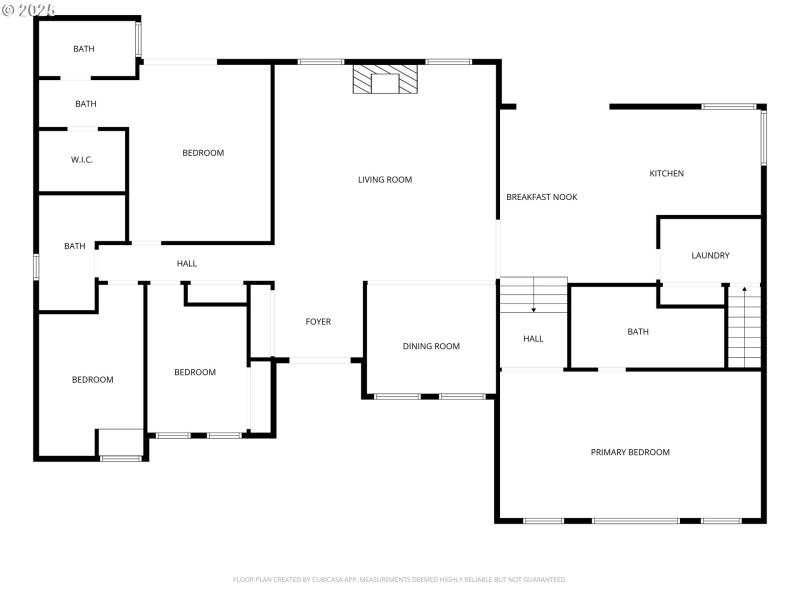
Stylish. Updated. Functional Design. Nestled in the coveted Palisades neighborhood of Lake Oswego, this beautifully updated 4-bedroom, 3-bath home on tranquil Greentree Circle offers the perfect blend of an open floor plan with thoughtfully defined spaces. The double-door entry opens to a light-filled living room with vaulted ceilings, a wood-burning fireplace, large seating area and a view of the pool.The remodeled kitchen (2021) features ample U-shaped quartz counters with a waterfall edge, a Wolf induction cooktop, built-in ovens, pantry, and built-in refrigerator. Unique to this property are two primary bedrooms, both with en-suites. The main-level primary suite includes a soaking tub, walk-in closet, washer and dryer, and sliders with direct pool access. The second primary suite, with a newly remodeled bath with walk-in shower (2023), was originally a family room—offering desirable flexibility for life’s changes. Inside, you’ll also find on the main level, two additional bedrooms, a remodeled bathroom with eye-catching design, and a laundry room with a sink and ample storage. The interior flows seamlessly to the private, low-maintenance backyard, complete with an inviting in-ground pool with automatic cover, and spa - a space designed for entertaining and family fun. Recent updates include:•New furnace and pool heater (2025)•New mini-split in upstairs primary (2024)•Remodeled primary and main bathrooms (2023)•New kitchen with waterfall quartz counters, Wolf appliances, roof, and gutters (2021)Located near highly rated schools, a welcoming community, and easy access to Palisades New Seasons, parks, golf, local shops, and the Lake Oswego Recreation & Aquatic Center.
Southshore Bl to Greentree Road, turn left to Greentree Circle
Dwelling Type: Residential
Subdivision: PALISADES
Year Built: 1977, County: US
Southshore Bl to Greentree Road, turn left to Greentree Circle
Listing is courtesy of eXp Realty, LLC