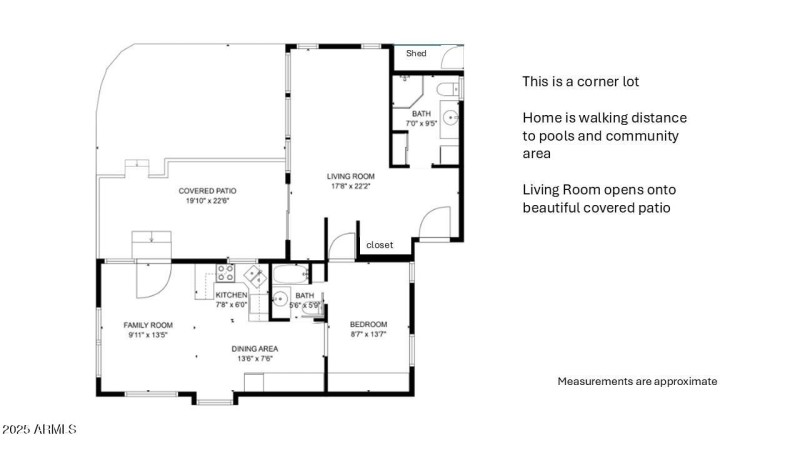
OWN YOUR LAND!! Ready to embrace vibrant 55+ living? Imagine owning your slice of Arizona paradise in this charming corner lot! Picture yourself relaxing on the east-facing covered deck, perfect for entertaining, with handy storage below. Inside, discover a bright kitchen with a skylight, vaulted ceilings and a garden window to hold your favorite plants or herbs. The spacious Arizona room is ideal for hobbies or a home office, complete with a ¾ bath and laundry. Home has a built in audio system and in ceiling speakers. Enjoy extra storage in the bedroom, and the added privacy of front door blinds. Located in a gated community near shopping and dining in Mesa, Chandler, and Gilbert, this furnished, turnkey home offers resort-style living at its finest. Home is being sold As Is.
Greenfield Village Resort. Enter off S Quinn and E Main St. From guard shack, R on Villager
Blvd, L on Damian Drive, last house on right, corner of Resort Ave and Damien Dr
Dwelling Type: Residential
Subdivision: GREENFIELD VILLAGE RESORT
Year Built: 1988, County: N/A
Greenfield Village Resort. Enter off S Quinn and E Main St. From guard shack, R on Villager
Blvd, L on Damian Drive, last house on right, corner of Resort Ave and Damien Dr
Listing is courtesy of Cactus Valley Realty
Sign in to your account to continue