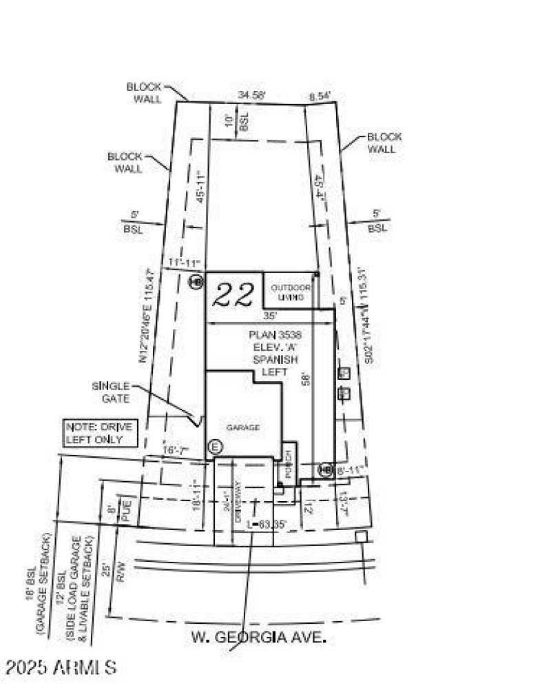
New Construction ~ Ready Now! Built by America's Most Trusted Homebuilder. Welcome to The Hudson at 11328 N 170th Lane in Paradisi Encore is the largest single-story floor plan in the collection, offering 2,352 sq. ft., 4 bedrooms, 3 bathrooms, a 2.5-car garage, and a versatile study. Off the foyer, a hallway leads to three secondary bedrooms and the study—ideal for remote work, especially with the optional double doors. The heart of the home opens to a spacious kitchen, dining area, and great room, designed for effortless entertaining and everyday living. Step outside to enjoy your private outdoor living space, perfect for soaking in the Arizona sunshine. The primary suite offers a relaxing retreat with a walk-in closet and a private bath featuring double sinks. This thoughtfully designed layout brings comfort and style to single-story living. Additional Highlights Include: Extended Outdoor Living, 8' Interior Doors, and Garage Extension. Photos are for Representative Purposes only. MLS#6872084
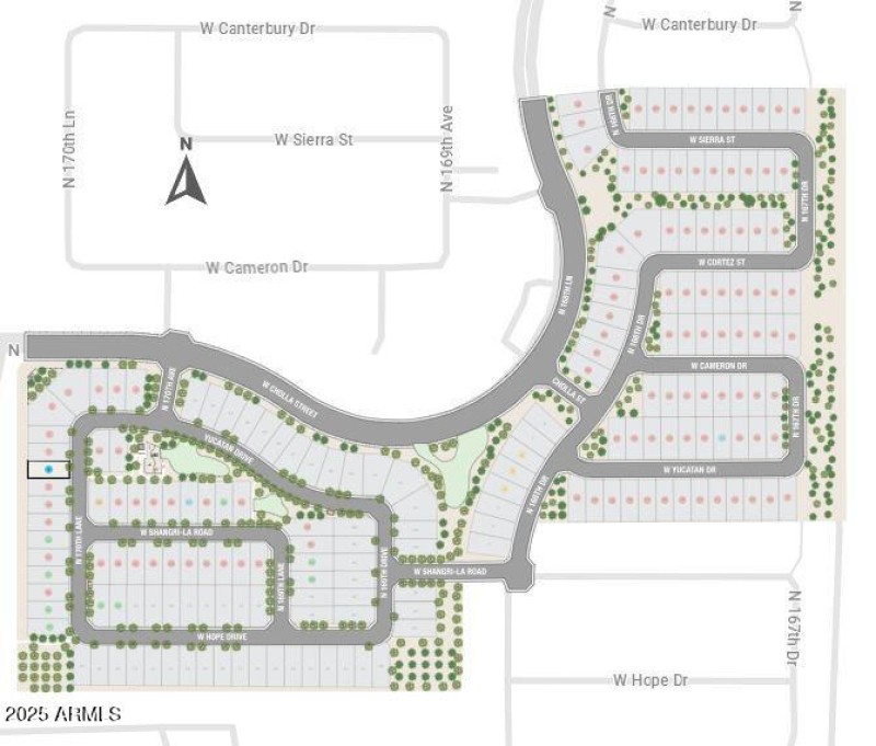
From AZ Loop 303: Exit 113/Cactus Road. Go (W) on Cactus Rd. Turn Lft (S) onto 168th Lane. Turn Lft (E) onto Cholla St. Models on the right
Dwelling Type: Residential
Subdivision: SYCAMORE FARMS PARADISI
Year Built: 2025, County: N/A
From AZ Loop 303: Exit 113/Cactus Road. Go (W) on Cactus Rd. Turn Lft (S) onto 168th Lane. Turn Lft (E) onto Cholla St. Models on the right
Listing is courtesy of Taylor Morrison (MLS Only)