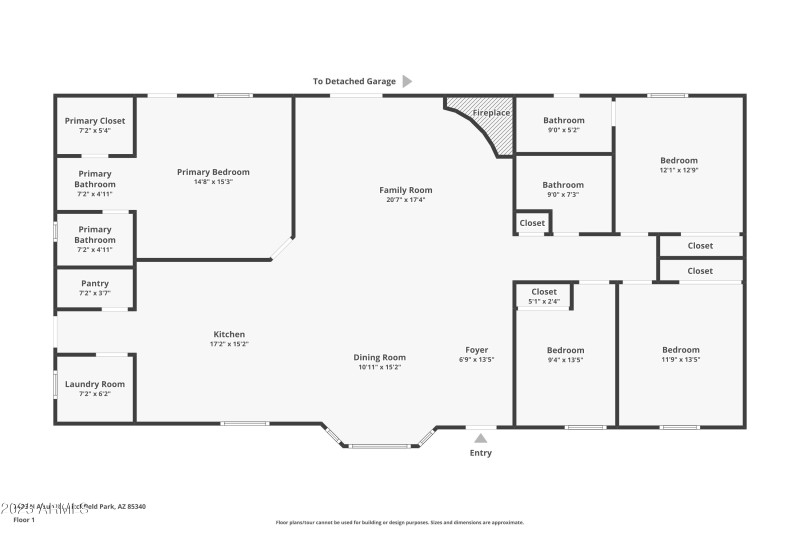
Horse lover's dream on over 4 irrigated acres—this move-in-ready property blends comfort, space, and a true equestrian lifestyle. The renovated 4-bed, 3-bath home offers an open layout, fresh flooring and paint, and a cozy wood-burning fireplace for relaxed nights in. Step onto the large covered patio and enjoy the lush, tree-filled, irrigated lawn—perfect for gatherings, quiet mornings, and sunset views. Owned solar with a transferable loan delivers real savings with seller credits nearly every month. Horse amenities include 24 permitted covered stalls, no-climb fencing, multiple wash racks, an A/C tack room with lockers, irrigated pastures, a 250' x 170' riding arena, and parking for trailers and RVs—turnkey and ready to enjoy.
East on Northern to Alsup, South on Alsup to the property on the east side of the street just south of Orangewood,
Dwelling Type: Residential
Subdivision: Metes & Bounds
Year Built: 1989, County: N/A
East on Northern to Alsup, South on Alsup to the property on the east side of the street just south of Orangewood,
Listing is courtesy of Real Broker
Sign in to your account to continue