MOVE-IN READY!! Discover the 4034 floor plan & all it has to offer. The kitchen boasts luxurious finishes, such as, stainless steel WOLF appliances, upgraded 42'' upper cabinets w/ crown molding, ample countertop space & a large center island. The adjacent informal dining area provides a comfortable & convenient space. The great room is filled with natural light, CUSTOM Fireplace Accent Wall & a sliding glass door lets in even more. The homes boasts plenty of room for everyone w/ a guest living area w/ separate entry & a bonus/game room. The spa-like primary bathroom includes a BEACH ENTRY shower, dual-sink vanity, a soaking tub, & a spacious walk-in closet. Enjoy outdoor living on the covered patio.
West on Cloud Rd. North on 20th St. West on Long Rifle to your new home.
Dwelling Type: Residential
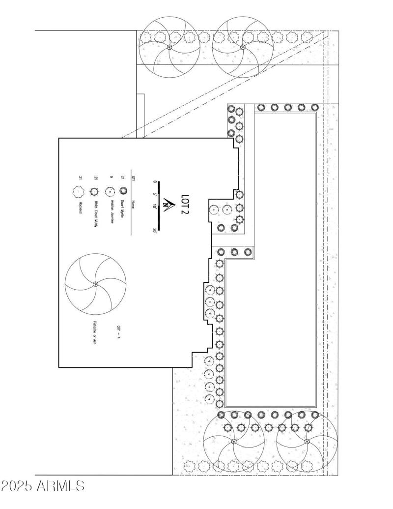
Subdivision: ONE ACRE FENCED Lot - NO HOA - FRONT YARD LANDSCAPING INCLUDED
Year Built: 2025, County: N/A
West on Cloud Rd. North on 20th St. West on Long Rifle to your new home.
Listing is courtesy of Realty ONE Group
Sign in to your account to continue