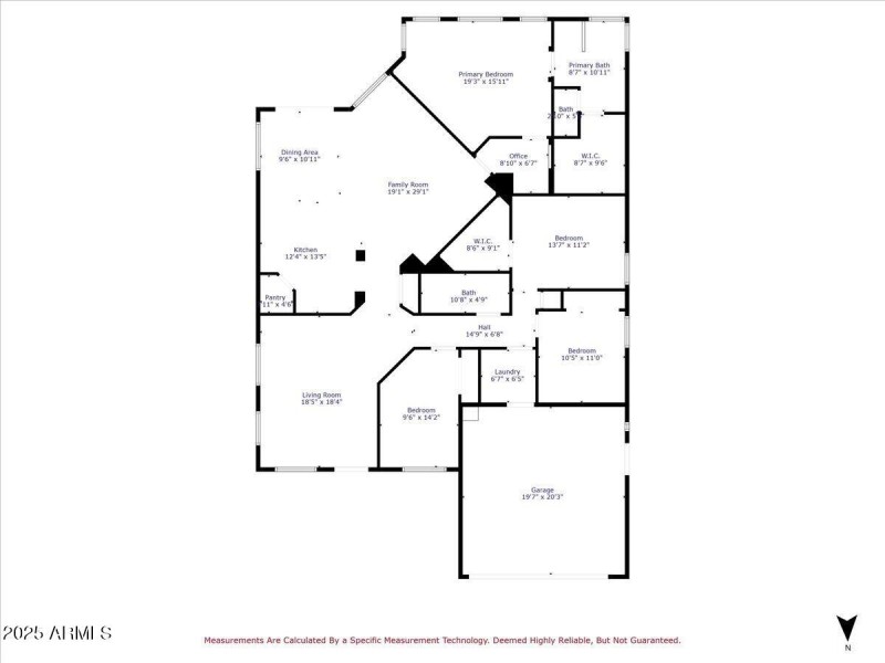
Welcome to this beautifully maintained home, offering a spacious 4-bed, 2-bath, open floor plan. Enjoy two separate living areas and a family room that flows into the kitchen, perfect for entertaining. Equipped with ample cabinetry, a pantry, a breakfast bar, and a casual dining area. A built-in desk area is great for a home office. The primary has a custom closet, bathroom with dual sinks, a soaking tub, and a separate shower. Bedroom 2 has a large walk-in closet. A major highlight is the ** solar panel system**, which contributes to a sustainable lifestyle. Enjoy lower utility bills and protection from rising energy rates. The oversized backyard has room for a pool or spa! It's a gardener's paradise with an established garden . Enjoy the covered patios, and oversized garage. HVAC new 2020
Windows new 2022
Water system 2021
Solar system 2022
Epoxy floors 2023
Head East on Baseline Rd.
Turn Left onto Wildrose Ave.
Turn Left onto E Jerome Ave.
The property will be on your left.
Dwelling Type: Residential
Subdivision: CRISMON CREEK UNIT 1
Year Built: 2001, County: N/A
Head East on Baseline Rd.
Turn Left onto Wildrose Ave.
Turn Left onto E Jerome Ave.
The property will be on your left.
Listing is courtesy of Realty ONE Group