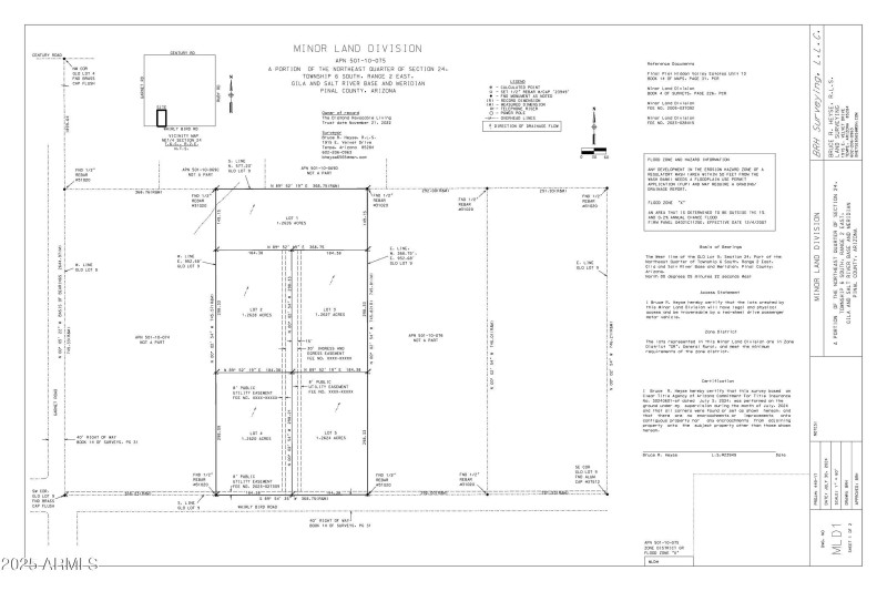
Discover Hidden Valley Estates in Maricopa, Arizona! Lot 2 of FIVE available parcels on paved Whirly Bird Road. This 1.26-acre equestrian lot boasts stunning mountain views, and seller financing may be available! Access hauled water through Maricopa Mountain Water Co. membership—ask your agent for details. Enjoy wide-open spaces with GR (General Rural) zoning, requiring a minimum 1.25 acres, so the parcel cannot be split. Experience fresh air, desert beauty, paved roads, and tranquility without city noise, yet near all amenities. Embrace country living in Maricopa—fall in love today! *Note: 2024 taxes prorated from original parcel; MLD available in documents & photos tab.
From Maricopa, S on 347, W on Clayton, S on Amarillo Valley, W on Whirly Bird 9/10 mi to parcel on N side. Welcome Home to Beautiful Maricopa!
Dwelling Type: Land
Subdivision: N/A
Year Built: N/A, County: N/A
From Maricopa, S on 347, W on Clayton, S on Amarillo Valley, W on Whirly Bird 9/10 mi to parcel on N side. Welcome Home to Beautiful Maricopa!
Listing is courtesy of Superlative Realty