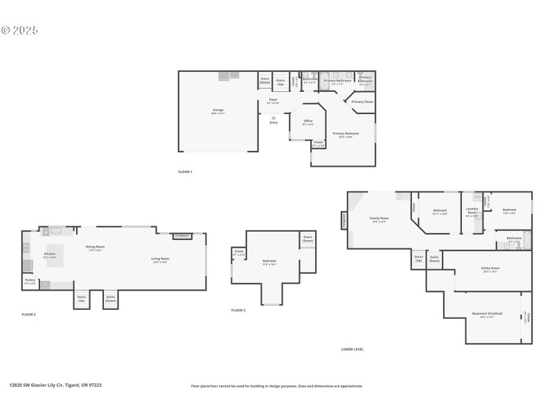
Lakefront Living in Coveted Summerlake! Discover serenity and style in this expansive lakefront home, located in the tranquil and highly sought-after Summerlake community. Greeted by the showstopping open-concept main level, where soaring vaulted ceilings, gleaming hardwood floors, and a wall of windows bathe the space in natural light and frame breathtaking lake views. The main-level primary suite features vaulted ceilings, a generous walk-in closet, and an ensuite with two separate showers and a soaking tub. The gourmet kitchen is designed to impress with a spacious island, ample walk-in pantry, and open flow into the dining and living areas, leading to a deck overlooking the tranquil lake—perfect for both relaxed family living and effortless entertaining. French doors lead to a versatile main-level den, ideal for a home office or creative space. Downstairs, the daylight basement is bright and welcoming, offering a spacious family room with custom built-in bookcases, a custom bar for entertaining, and easy walk-out access to the lower deck and one of the home’s standout features: a completely level, expansive backyard. The finished flex space is perfect for a gym, media room, or extra storage. Upstairs, a versatile loft and additional bedroom provide excellent options for guests, a second office, or playroom. Enjoy year-round outdoor living—sip morning coffee on your private deck with peaceful lake views, take a soak in the hot tub, or explore the scenic trail bordering the property. Surrounded by natural beauty and set within a quiet, established neighborhood with low HOA dues, this home offers exceptional tranquility and convenience—just minutes to top-rated schools, parks, and Tigard’s best amenities. Don’t miss this rare opportunity to own a true lakefront masterpiece—where space, design, and premier location unite for the ultimate lifestyle.
SW Scholls Ferry, S on SW North Dakota, R on Springwood, L on Summer Lake Dr, L on Summer Lake Cr.
Dwelling Type: Residential
Subdivision: SUMMER LAKE
Year Built: 1984, County: US
SW Scholls Ferry, S on SW North Dakota, R on Springwood, L on Summer Lake Dr, L on Summer Lake Cr.
Listing is courtesy of Reger Homes, LLC