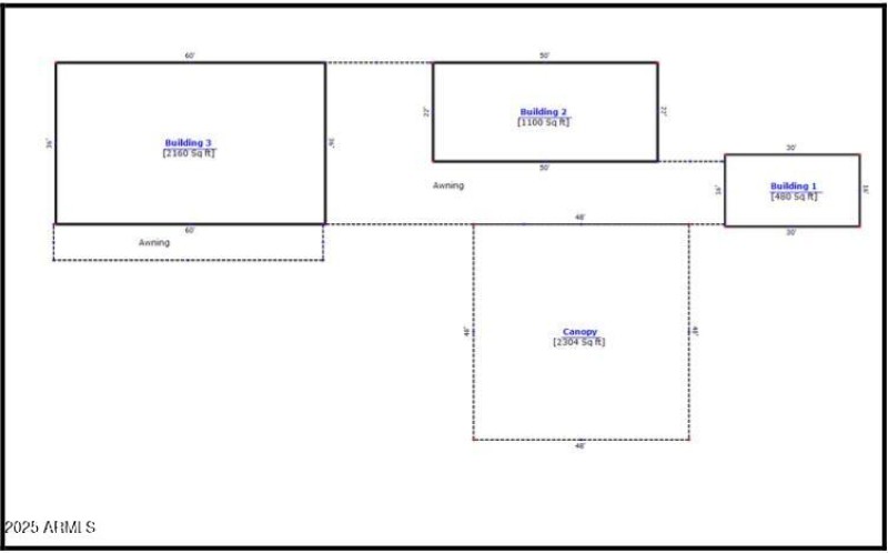
Existing service facility that currently provides tire restoration and replacement services for trucks, semis and busses. The property consists of five parcels and
contains over 1.28 acres. There is an office building and separate covered structure for service activities,
including tire repair and reconstruction. The property could be redeveloped for a variety of uses including: self storage, vehicle repairs and service and other commercial/industrial uses.
The sale price does not include the inventory and equipment associated with the current business. Should the buyer be interested, this can be made available under a separate bill of sale...Tenant Lease terminates July 2025 - Month to Month thereafter
Dwelling Type: Comm/Industry Sale
Subdivision: N/A
Year Built: 2003, County: N/A
Listing is courtesy of ProSmart Realty
Sign in to your account to continue