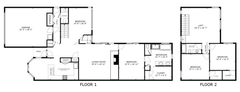
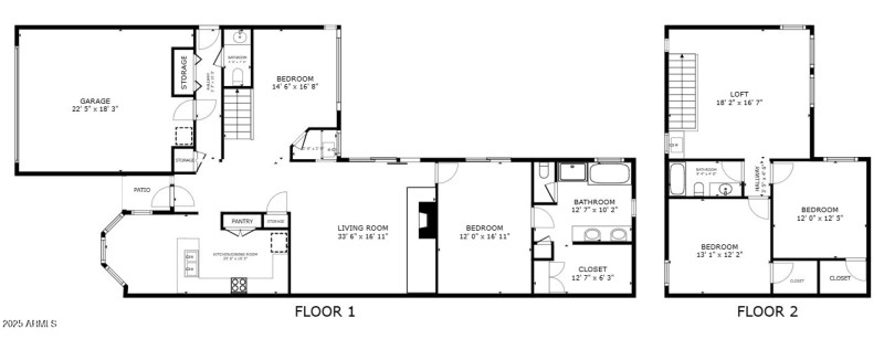
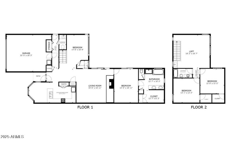
Bright, Modern & Spacious! This North Scottsdale home shows off a kitchen featuring white cabinets, tile backsplash, SS appliances, breakfast bar, eat-in area & wet bar for added convenience. Spacious loft upstairs with a 2nd wet bar offers flexible living space while the two large additional bedrooms offer walk-in closets! Downstairs split primary includes soaking tub, separate shower, double vanity & a walk-in closet with custom wardrobe. The backyard includes a covered patio with a fully retractable & adjustable awning, synthetic turf, updated decking & private pool/spa. Upgrades include a new roof, HVAC systems on both levels, updated doors, windows & shutters, landscaping & more. Easy access to the 101 & close to dining, shopping & recreation, this move-in ready home offers it all!
Head north on N Frank Llyod Wright Blvd for a mile, make a right turn onto E Laurel Ln. Home will be located a quarter mile down the street on right side.
Dwelling Type: Residential
Subdivision: CASA NORTE
Year Built: 1987, County: N/A
Head north on N Frank Llyod Wright Blvd for a mile, make a right turn onto E Laurel Ln. Home will be located a quarter mile down the street on right side.
Listing is courtesy of HomeSmart