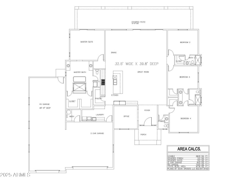
This home is a build to suit. Construction time is 6-7 months. Finishes are customizable. Builder has permits and is ready to build. This stunning property offers a large 1.25 acre lot with no HOA restrictions. Enjoy the tranquility of country living and mountain views while still being conveniently located near stores and amenities. The property has plenty of space for a separate RV garage, casita, pool, you name it. Don't miss out on this rare opportunity to customize your perfect home in this desirable location.
Going south on Schnepf - Turn east on Weston Ln. This home is on the North side of Weston Ln in the new home development.
Dwelling Type: Residential
Subdivision: unknown
Year Built: 2025, County: N/A
Going south on Schnepf - Turn east on Weston Ln. This home is on the North side of Weston Ln in the new home development.
Listing is courtesy of HomeSmart