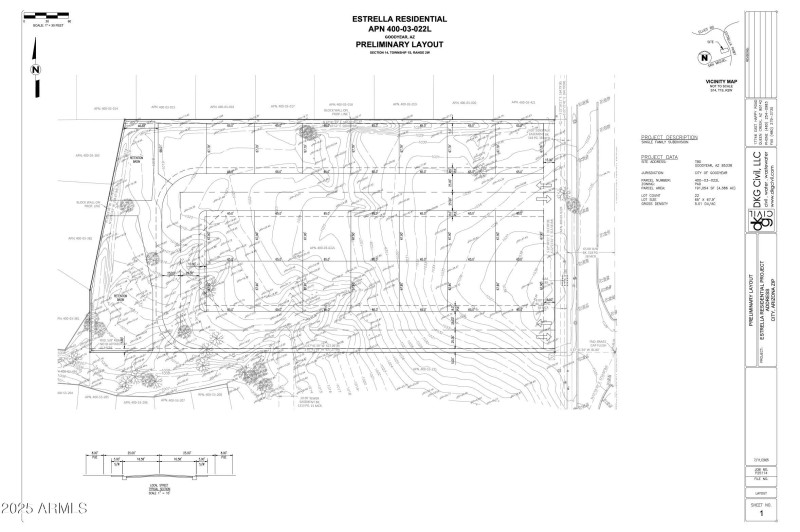
This 4.39 Acre PAD-zoned parcel offers an excellent infill development opportunity in a growing market. With preliminary capacity for 22 single-family home lots, the site is ideally positioned for a builder targeting affordable or mid-range housing. This is a rare, ready-to-develop parcel in a location where housing demand remains strong. Seller Financing Available.
Near Intersection of S Estrella Pkwy & w San Miguel Ave
Dwelling Type: Land
Subdivision: Estrella Mountain Ranch, Goodyear AZ
Year Built: N/A, County: N/A
Near Intersection of S Estrella Pkwy & w San Miguel Ave
Listing is courtesy of HomeSmart