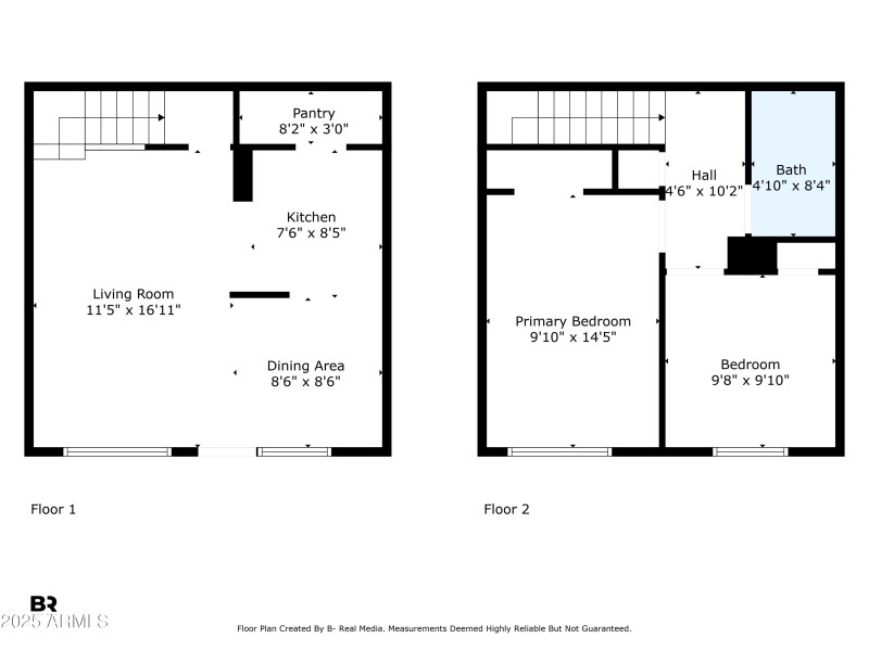
Desireable 2 bed / 1 bath Townhome unit with private laundry, private patio, and community pool! Newer A/C (2021) offers peace of mind. The open-concept kitchen includes black appliances, a pantry, and opens to the living room for a light and welcoming feel. Tile flooring downstairs and your own outdoor space. HOA covers trash, sewer and the roof. Located just minutes from Banner Desert Hospital, with easy freeway access, plus nearby shopping and dining.
Head north on Dobson Rd, turn left (west) into the entrance just past Janelle St, enter the complex, continue straight, Unit #6 will be on your left.
Dwelling Type: Residential
Subdivision: HALLCRAFT VILLAS MESA
Year Built: 1972, County: N/A
Head north on Dobson Rd, turn left (west) into the entrance just past Janelle St, enter the complex, continue straight, Unit #6 will be on your left.
Listing is courtesy of Rover Realty