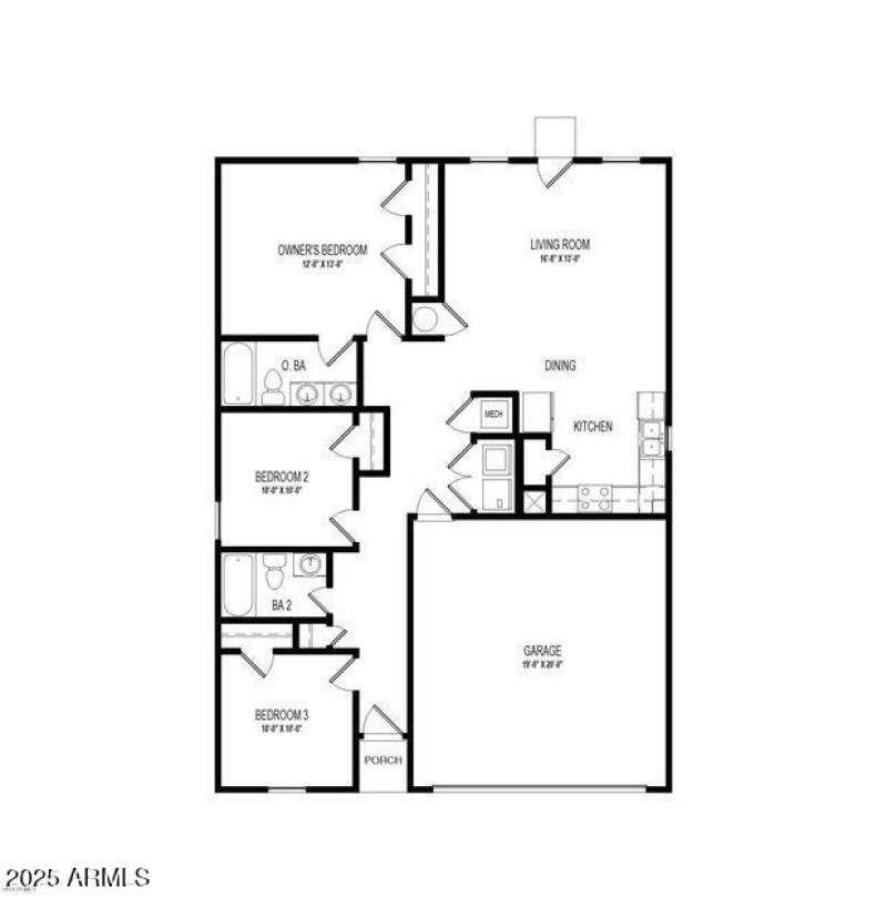
Move in ready 3-Bedroom, 2 bath with large cornet lot.
Home interior recently painted providing a fresh and inviting atmosphere. The brand-new flooring throughout adds to its clean and cohesive look. Plus, all new window cordless cellular blinds.
The master bathroom has a walk-in hybrid tub, offering both relaxation and convenience.
Equipped w/solar panels that offer clean, renewable energy that slashes your electric bill. July was $5.41 credit.
Just 2 miles from freeway.
All offers are welcome. Motivated Seller!
Incentives for buyer/s:
$3000 to buy interest down/closing cost.
One year home warranty.
Make the move to a brighter, smarter, and greener life.
Hold Open Title with sellers prefer Title Services of the Valley.
Owner/Agent
From Phoenix go east on I-10. Exit west on McCartney. South on Peart Rd. Left or east on O' Neil Dr.
Right, or south on Desert Willow St. Left on Irene, and Left on St Francis Place.
Dwelling Type: Residential
Subdivision: TAMARON PARCEL E
Year Built: 2019, County: N/A
From Phoenix go east on I-10. Exit west on McCartney. South on Peart Rd. Left or east on O' Neil Dr.
Right, or south on Desert Willow St. Left on Irene, and Left on St Francis Place.
Listing is courtesy of HomeSmart