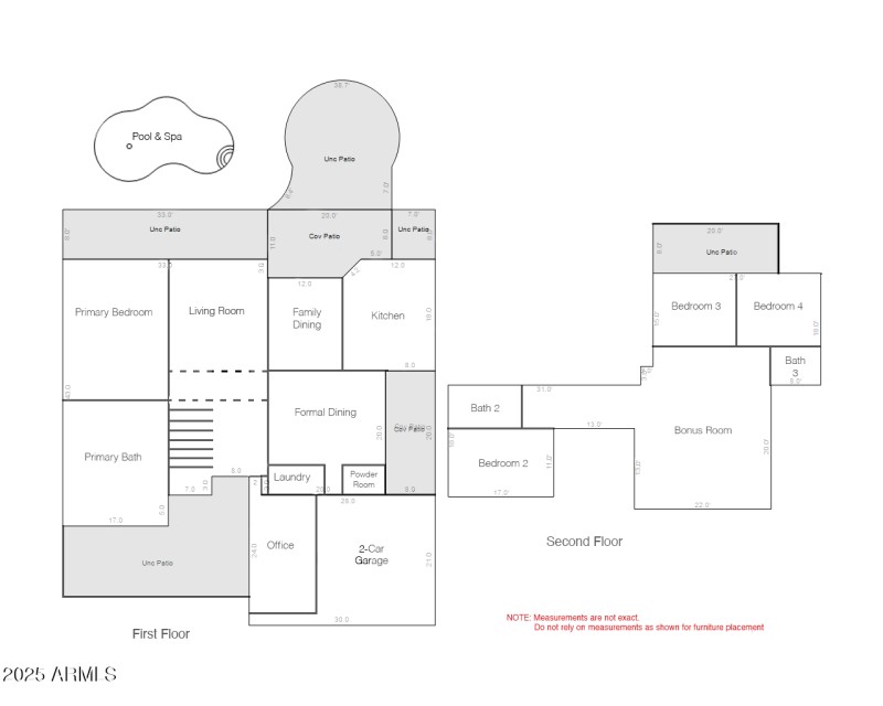
Cul-de-sac home on preserve. Fenced pool, heated spa, gas fire pit, covered patios and balconies. Interior fireplace, vaulted ceilings, wood trim & shutters, Travertine flooring. Lg Kitchen with wine cooler & fridge. Primary BD suite has patio access; primary BA incl steam shower, deep garden tub, dual vanities, custom his/her WICs and private toilet room. Upstairs features lg bonus room with wet bar and storage. BDs have balcony access, ceiling fans, large closets. Inside laundry incls new washer/dryer. 3rd car garage converted to office w/built-in desk & cabinets. Kyrene School dist. NO SMOKING. 1 SM DOG (less than 35 lbs). Pet Dep $350 plus $30/mo pet fee. $65/adult app fee. No add'l admin fees. Owner reserves right to increase sec dep. Renter verifies all facts, figures & school info
W on Ray 2.2 miles; S on 31st WAY, L on Dry Creek
Dwelling Type: Residential Lease
Subdivision: HIGHLANDS AT MOUNTAIN PARK RANCH UNIT 3
Year Built: 1987, County: N/A
W on Ray 2.2 miles; S on 31st WAY, L on Dry Creek
Listing is courtesy of McKenney Realty LLC