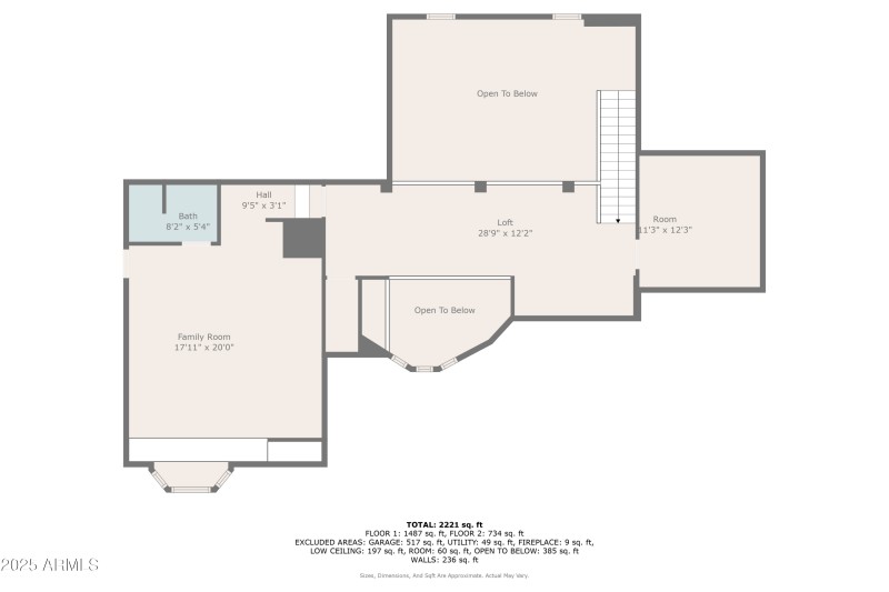
Located just minutes from town yet offering a distinctly rural feel, this home delivers the space, layout, and lifestyle today's buyers are looking for. Set on a full acre in the established Cheney Ranch neighborhood, this 4-bedroom, 3-bathroom home offers room to grow both inside and out.
Step inside to an inviting open living room that forms the heart of the home. To the right, you'll find two bedrooms and a full bath tucked off a hallway—ideal for kids, guests, or a home office setup. The front bedroom features a charming bay window that floods the room with natural light, while the back bedroom overlooks the spacious yard.
The living room opens to a stairwell leading to a versatile upstairs loft, complete with built-in craft storage, a bonus room, and a full bath plus another large bay window that adds warmth and dimension.
To the left of the living space, you'll find a functional kitchen that walks through to a formal dining room with generous windows and plenty of natural light. Just off the kitchen, the primary suite sits privately between the garage entry/mudroom and the living areas, creating a thoughtful flow with added convenience. Lofted second level ideal for creative or extended living spaces
Outside, you'll find a covered front deck, covered back porch, and a large grass lawn ready for entertaining, gardening, or simply enjoying open skies and starry nights. There's also a dedicated outbuilding currently used as a home office, offering flexibility for remote work, hobbies, or additional storage.
First entrance to Cheney Ranch from Hwy 260, Left on Cheney Ranch Loop, Left on Rim Rock to sign on Right.
Dwelling Type: Residential
Subdivision: CHENEY RANCH UNIT 2
Year Built: 1997, County: N/A
First entrance to Cheney Ranch from Hwy 260, Left on Cheney Ranch Loop, Left on Rim Rock to sign on Right.
Listing is courtesy of Keller Williams Realty Phoenix