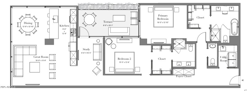
Now Selling: Optima McDowell Mountain, a new luxury condo community in North Scottsdale delivering Spring/Summer 2027. Set on 22 acres with 75% open space, it features six 8-story buildings and a 10-acre park with a walking path and putting green. One-, two-, and three- bedroom homes (729-2,218 SF) offer floor-to-ceiling windows, high-end appliances, and private terraces with vertical gardens. Enjoy resort-style amenities just across from Whole Foods, Buck & Rider, shops, and more. Live the modern desert lifestyle. This home features 2 bedrooms and 2.5 bathrooms plus a study which opens to the spacious terrace perfect for enjoying your coffee while watching the sunrise. The well appointed great-room dining and kitchen warmly welcome you,
Sales Gallery is located at 15615 N 71st St, Scottsdale AZ 85254. Directions to the 7230 Building: From Scottsdale Rd east on Mayo Blvd.
Dwelling Type: Residential
Subdivision: OPTIMA MCDOWELL MOUNTAIN VILLAGE CONDOMINIUM
Year Built: 2027, County: N/A
Sales Gallery is located at 15615 N 71st St, Scottsdale AZ 85254. Directions to the 7230 Building: From Scottsdale Rd east on Mayo Blvd.
Listing is courtesy of Polaris Pacific of AZ