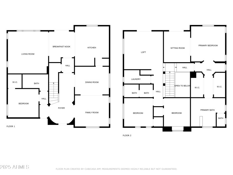
Eligible for a Lender Paid rate buy-down* Welcome to your private oasis in Estrella Mountain Ranch. This beautifully maintained 4 bedroom, 3 bath home near the golf course with no rear neighbors and panoramic mountain views from the upstairs balcony. A spacious bedroom and full bath on the main level offer convenience and flexibility, while formal living and dining areas flow into an open kitchen with generous storage and a large family room, perfect for entertaining or everyday comfort.
The 3-car split garage includes a single bay that can easily be converted into a guest suite or casita, adding even more versatility to the home. Upgrades throughout include wood-look flooring, stone countertops, a new AC unit, water softener, rain gutters, fresh exterior paint, and a fully renovated upstairs bathroom.
The solar lease helps keep monthly energy costs predictable with average monthly bills under $60. You'll also enjoy quality kitchen appliances, including a Samsung refrigerator, GE Profile dishwasher, and GE Profile wine fridge.
Step outside to a backyard built for fun and relaxation, featuring a sparkling pool with waterfall, resurfaced pool deck, gas fire pit, private courtyard, and your very own putting green.
Nestled in one of Goodyear's most sought-after communities, you'll have access to lakes, fitness centers, hiking trails, golf, a water park, community events, and miles of scenic desert views. This is your chance to own a thoughtfully upgraded home with unbeatable views and lifestyle amenities.
Take Estrella Pkwy south to Westar Dr.
Go West on Westar to Verdin Rd. North on Verdin, west on 183rd Ave. Property will be on the right.
Dwelling Type: Residential
Subdivision: Estrella Mountain Ranch
Year Built: 2007, County: N/A
Take Estrella Pkwy south to Westar Dr.
Go West on Westar to Verdin Rd. North on Verdin, west on 183rd Ave. Property will be on the right.
Listing is courtesy of My Home Group Real Estate
Sign in to your account to continue