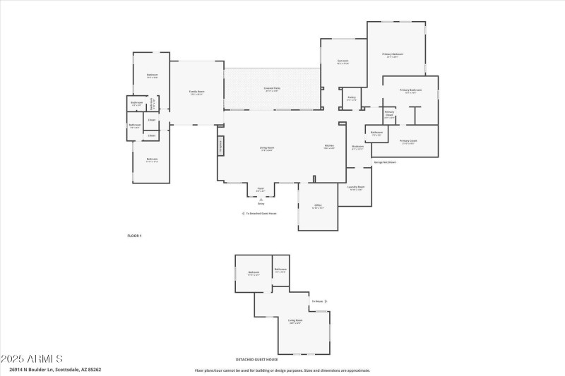
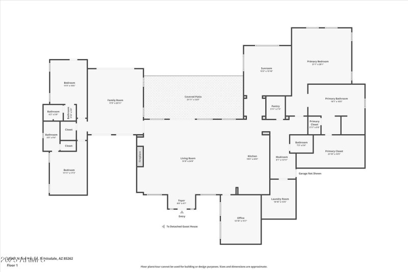
SPECTACULAR NEW HOME! $500K+ IN INSTANT EQUITY! PRICED TO SELL! Rare Opportunity! Seller Must let go of this Spectacular New, Semi-custom Home in Boulder Ranch in North Scottsdale. This Toll Brothers' New home, built in 2023, is Amazing and they spared no expense on the upgrades. 4BD 5BA plus Bonus room and FULL 1BD 1BA Guest Casita (attached but w/ separate entrance) Gorgeous pool and Huge turf area in back. and much, much more! This one will NOT last!
East on Jomax to the end. Boulder Ranch is on North side. Go through gate, turn Right on Cavedale and then Right again to follow Cavedale. North on Boulder Ln to property.
Dwelling Type: Residential
Subdivision: BOULDER RANCH
Year Built: 2022, County: N/A
East on Jomax to the end. Boulder Ranch is on North side. Go through gate, turn Right on Cavedale and then Right again to follow Cavedale. North on Boulder Ln to property.
Listing is courtesy of Citiea