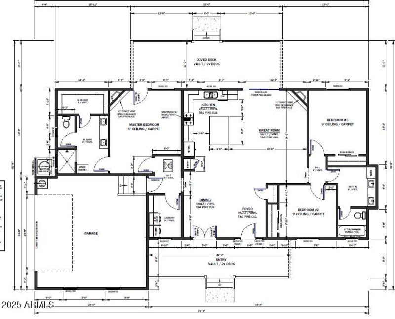
This is a home to be built on a lot/build package in beautiful Torreon Lakes. This large corner lot has ample room for this custom build. Floor plan includes fireplace in both living room and primary bedroom. Primary bedroom also has exit onto back deck. Color choices and finishes can be selected with builder upon agreement to purchase. Changes to floor plan can be made and will affect total price.
Us 60 to Torreon Entrance on Summit Trail, right on Torreon Lakes Dr, Left on Whispering Springs, arrive at lot on right
Dwelling Type: Residential
Subdivision: Torreon Lakes
Year Built: 2026, County: N/A
Us 60 to Torreon Entrance on Summit Trail, right on Torreon Lakes Dr, Left on Whispering Springs, arrive at lot on right
Listing is courtesy of West USA Realty
Sign in to your account to continue