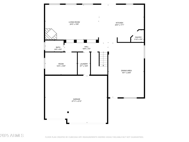
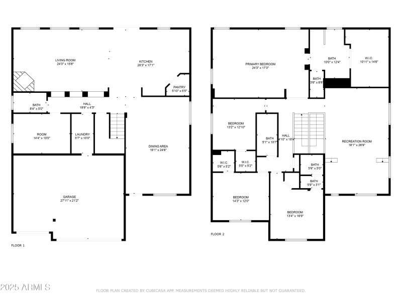
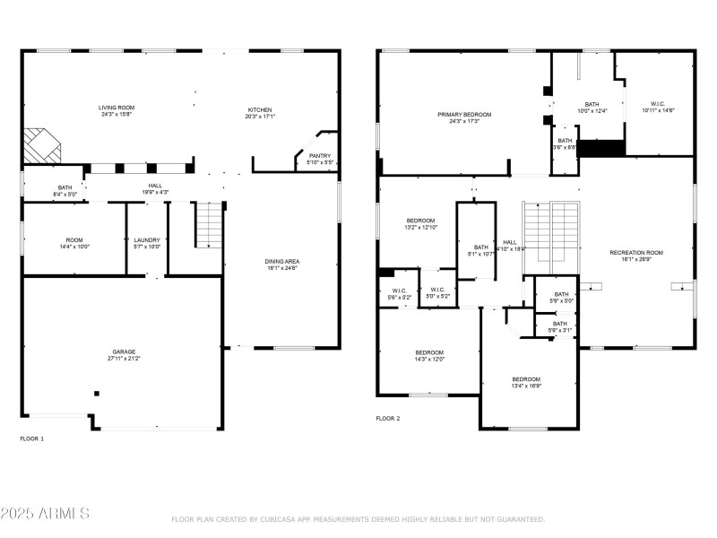
Welcome to Westwing Mountain in Peoria! Nestled in a quiet cul de sac at the base of the mountain, this expansive two-story home offers the pinnacle of spacious and comfortable living with 5 oversized bedrooms with walk-in closets, ample bathrooms and fantastic entertainment or relaxation spaces. Enjoy movie nights in your dedicated movie room, perfect for entertaining or relaxing with the family. Beautiful open kitchen. -efficient with owned solar panels The backyard retreat with no neighbors behind offers privacy and magnificent mountain views. Energy efficient with OWNED and PAID off solar panels, while the garage is equipped with a Tesla charger for added convenience. Located in a sought-after Peoria neighborhood close to shopping, dining and minutes from the 303 and TSMC.
WW Parkway turn left onto 91st ave, then right on N Sierra Sky, left on Yellow Bird to home on left side of street.
Dwelling Type: Residential
Subdivision: WESTWING MOUNTAIN PHASE 2 PARCEL 29
Year Built: 2006, County: N/A
WW Parkway turn left onto 91st ave, then right on N Sierra Sky, left on Yellow Bird to home on left side of street.
Listing is courtesy of White Peak Real Estate LLC
Sign in to your account to continue