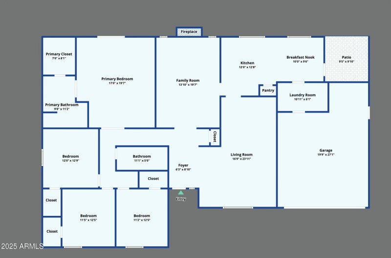
Discover the charm of Moon Valley golf course community, Students are walking distance to top rated schools.  living with this spacious, single story, 4-bedroom, 2-bath home in the heart of North Central Phoenix. Set against the backdrop of scenic mountain views, this property offers both comfort and convenience. At the front entry, pavers add a touch of elegance, welcoming you home. All three secondary bedrooms contain spacious walk in closets. The expansive primary suite features a generous walk-in closet and French doors that open directly to the sparkling diving pool, perfect for relaxing Arizona evenings. 
The backyard is an entertainer's dream with a large grassy area, mature fruit trees, expansive covered patio with lights, fans, and plenty of space for gatherings. Just steps away, enjoy Moon Valley Park, Moon Valley Country Club, Moon Valley golf. Students are walking distance to top rated schools. 
Lookout Mountain Golf Club, shopping, dining and the Pointe Tapatio Resort are just down the road.
You won't want to miss living in this active community of neighbors! 
 From 7th St and Thunderbird, Head West on Thunderbird. Turn Right onto N Gables Dr, make your next Right at W Gleneagles Dr, Turn Left onto N 8th Ave. The property will be on your right. 
 
                                                        Dwelling Type: Residential 
                            Subdivision: COUNTRY CLUB NORTH UNIT 3 
                            Year Built: 1980, County: N/A 
                            From 7th St and Thunderbird, Head West on Thunderbird. Turn Right onto N Gables Dr, make your next Right at W Gleneagles Dr, Turn Left onto N 8th Ave. The property will be on your right.
                        
Listing is courtesy of West USA Realty