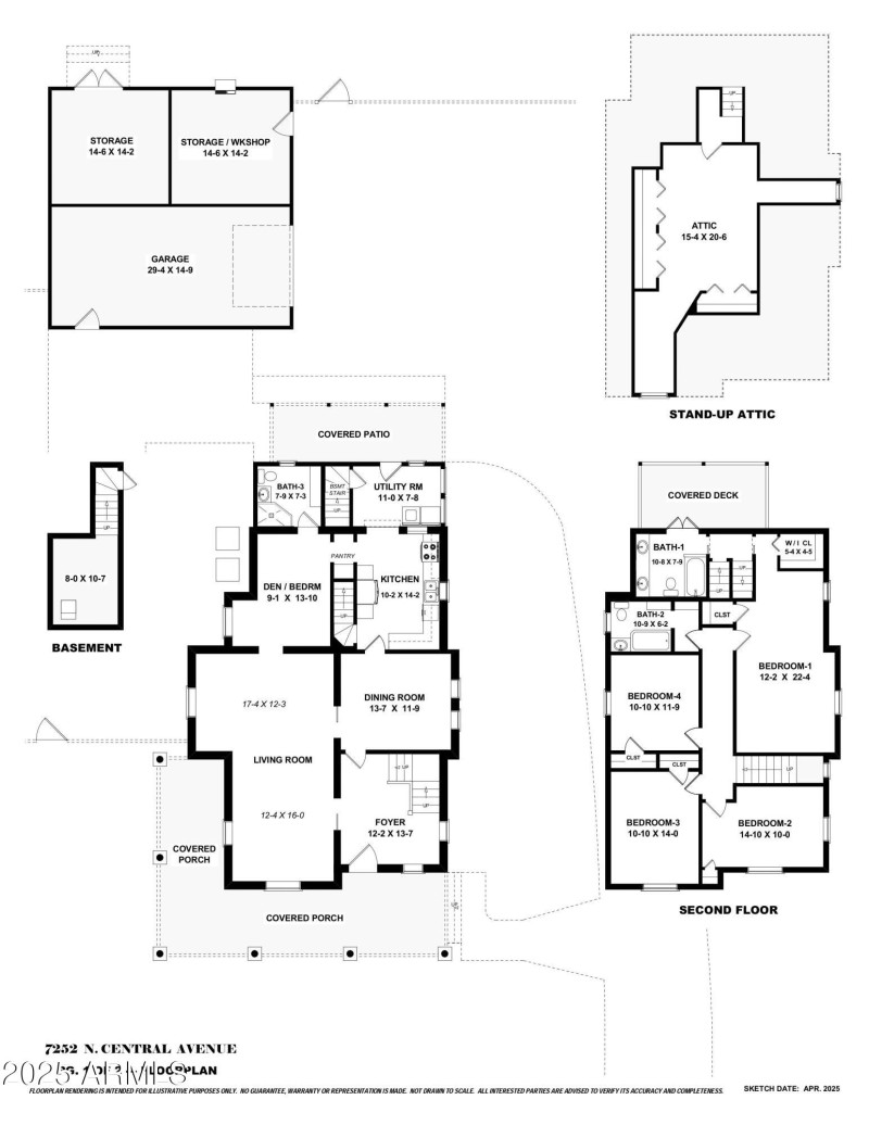
Discover a rare piece of Phoenix history with this extraordinary North Central gem, built in 1900! Known as the Allen/McKeown House, this is one of the oldest surviving homes in all of Central Phoenix. Tucked behind towering mature landscaping, this Queen Anne style Victorian Era Colonial Revival sits on a private, flood-irrigated 25,419 sq ft lot.
The stately wrap-around porch sets the tone, offering the perfect place to slow down and enjoy the lush, park-like setting. Inside, the home blends historic charm with everyday livability, showcasing original Douglas fir wood floors and doors, four-brick-thick construction, four bedrooms, three bathrooms, a den/office, a 108 sq ft basement, and a 413 sq ft attic space ideal for storage, a playroom, or a creative retreat. A quaint covered deck off of the primary bedroom offers a peaceful spot for morning coffee and reflection. Outside, the sprawling .58 acre lot features a detached one-car garage, two storage rooms/workshops totaling 440 sq ft, and a charming gazebo perfect for relaxing in the shade.
Situated on prestigious Central Avenue and across from the famed Murphy Bridle Path, this home offers unmatched access to the best of North Central, including the Uptown Farmers Market, top-rated restaurants, the Phoenix Mountain Preserve, excelling Madison schools, Brophy, Xavier, All Saints, St. Francis, and more.
Historic, timeless, and ideally located, this one-of-a-kind property is a rare opportunity to own a true piece of Phoenix history.
North on Central to property on the West side of the street.
Dwelling Type: Residential
Subdivision: ORANGEWOOD LOT 20 BLOCK 5
Year Built: 1900, County: N/A
North on Central to property on the West side of the street.
Listing is courtesy of Compass