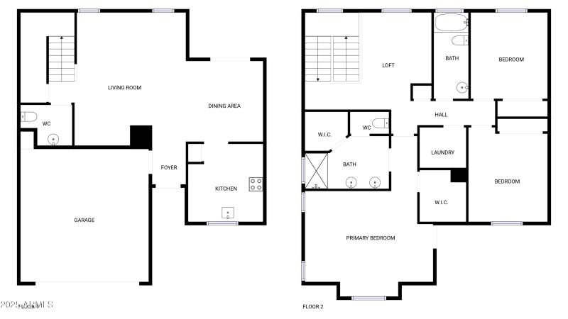
Welcome to this beautifully updated home! The interior boasts a fresh coat of neutral color paint, complementing the partial flooring replacement. The kitchen is a chef's dream with all stainless steel appliances. The primary bedroom features a generous walk-in closet, while the primary bathroom offers the convenience of double sinks. Loft upstairs along with laundry. Enjoy outdoor living with a covered patio in the fenced-in backyard. This home is a perfect blend of style and comfort. Don't miss out on this gem!. Included 100-Day Home Warranty with buyer activation
Head south on N Main Dr toward Camino Dr. Turn left onto Camino Dr. Turn right onto W Expressman St
Dwelling Type: Residential
Subdivision: STAGECOACH TRAILS SUBDIVISION 2016029477
Year Built: 2018, County: N/A
Head south on N Main Dr toward Camino Dr. Turn left onto Camino Dr. Turn right onto W Expressman St
Listing is courtesy of Opendoor Brokerage, LLC
Sign in to your account to continue