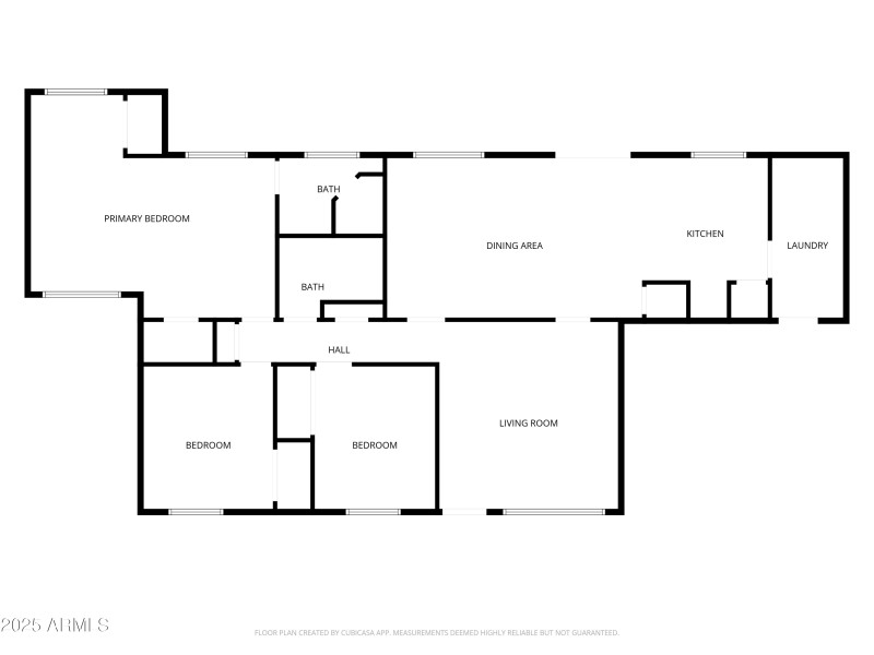
This expansive 3-bedroom, 2-bathroom home offers nearly 1,900 square feet of versatile living space. Centrally located in the Village Meadows neighborhood. The open kitchen includes a breakfast bar and is equipped with all necessary kitchen appliances. Enjoy year-round comfort with dual cooling—central A/C plus evaporative cooling. The home features a spacious living room, dining room, primary bedroom w/walk-in closet, and a large laundry room. Dual-pane windows and ceiling fans add to the comfort and efficiency. Step outside to a low maintenance, fully fenced spacious backyard with gravel landscaping, mature trees and plants, back porch with seating area, storage shed/workshop and convenient RV gate - all within a quiet cul-de-sac. This home has it all—space, style, and convenience!
Take Fry Blvd east. Turn right onto El Camino Real. Turn right onto Paseo Media. The house is at the end of the cul-de-sac.
Dwelling Type: Residential
Subdivision: Village Meadows
Year Built: 1964, County: N/A
Take Fry Blvd east. Turn right onto El Camino Real. Turn right onto Paseo Media. The house is at the end of the cul-de-sac.
Listing is courtesy of Arizona Homestores LLC
Sign in to your account to continue