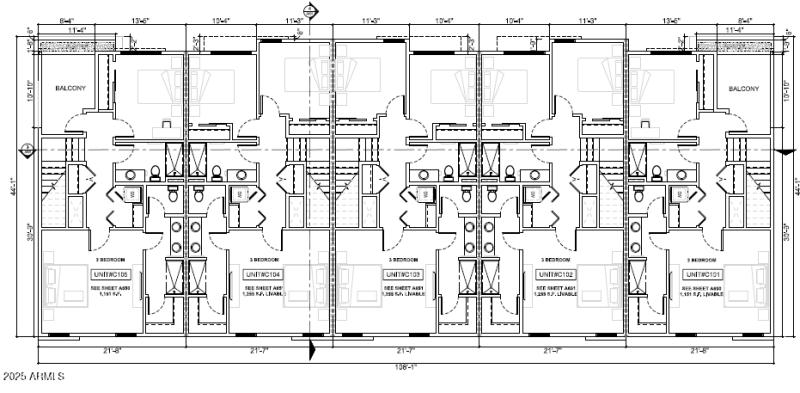
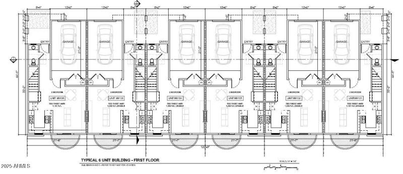
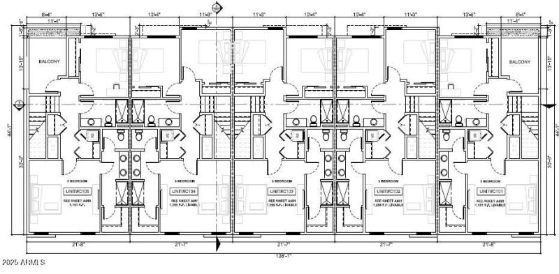
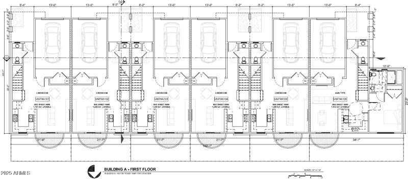
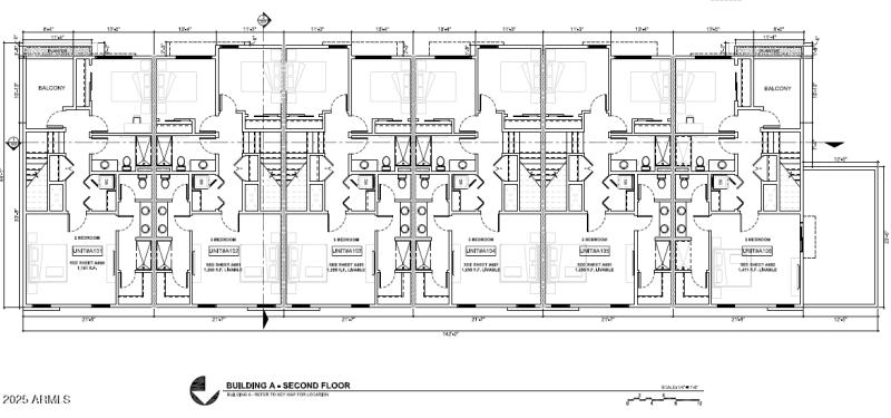
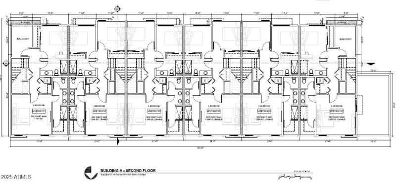
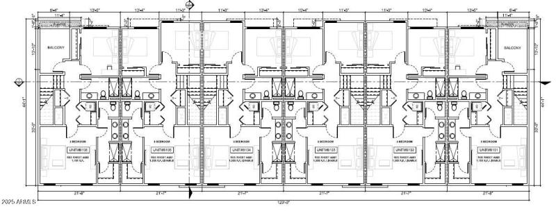
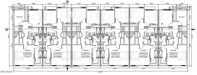
Prime 2.41-acre infill lot in central Glendale, zoned R-2 for medium-density residential development. With city-approved plans in place, this shovel-ready site is entitled for a 28-unit multifamily project, presenting an exceptional opportunity to deliver high-demand housing in a thriving Glendale location Located just south of Northern Avenue between W. Frier Dr. and W. Morten Ave., the property is surrounded by established neighborhoods and offers close proximity to schools, parks, and major thoroughfares. Offered with approved plans at no additional cost.
61ST & NORTHERN Directions: SOUTH ON 61ST TO PROPERTY
Dwelling Type: Land
Subdivision: N/A
Year Built: N/A, County: N/A
61ST & NORTHERN Directions: SOUTH ON 61ST TO PROPERTY
Listing is courtesy of SVN/Desert Commercial Advisors