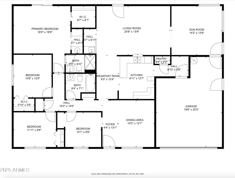
Set on a lot larger than the median lot size for the subdivision, this home features a covered front patio accessed through an arched entryway in the front. In the backyard you'll find several palm trees, as well as a basketball court on the north side. The 2-car garage includes built-in storage, while inside, the updated kitchen features granite counters, tile backsplash, and a stainless steel dishwasher. The primary suite includes direct backyard access, a true vanity, and a tiled shower with updated finishes. The secondary bathroom includes grab bars and a detachable showerhead.
South to Altadena then turn right (west), then another immediate right (north) on 39th Dr. The home is in the culdesac on the right. **Make sure you are not on 39th Ln as there is an identical house number there!**
Dwelling Type: Residential
Subdivision: FAIRWOOD UNIT 7
Year Built: 1978, County: N/A
South to Altadena then turn right (west), then another immediate right (north) on 39th Dr. The home is in the culdesac on the right. **Make sure you are not on 39th Ln as there is an identical house number there!**
Listing is courtesy of Olson Gough
Sign in to your account to continue