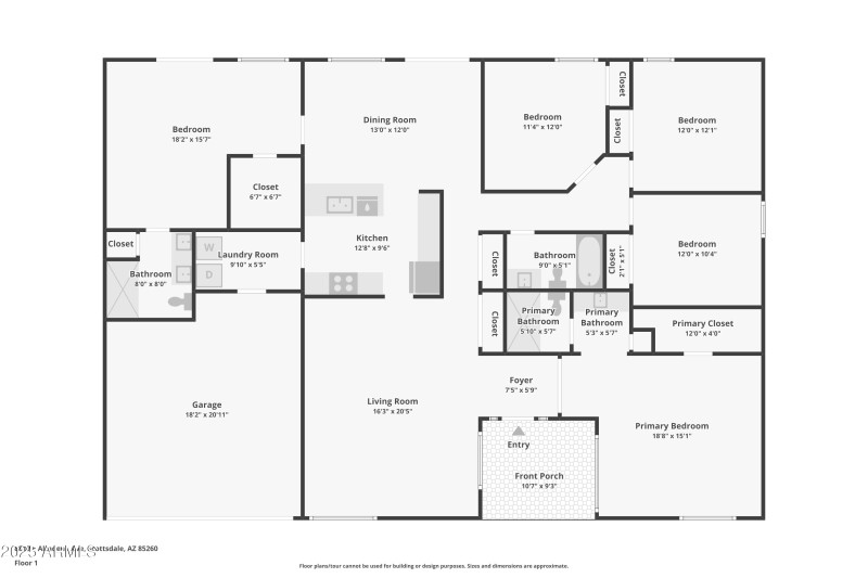
5 bedrooms, no HOA, private pool in Scottsdale! Two spacious primary suites headline this exceptional 5 bedroom home, offering the perfect setup for large families, multi generational living or high performing vacation rentals. With NO HOA, you'll have the freedom to make this property your own. The great room invites easy entertaining, while the resort style backyard delivers a sparkling pool, cozy firepit, putting green and bocce ball court for endless outdoor fun. Located just minutes from the 101 freeway, top restaurants and shopping, this Scottsdale gem combines space, flexibility and convenience into one incredible opportunity.
Dwelling Type: Residential
Subdivision: SCOTTSDALE VISTA
Year Built: 1979, County: N/A
Listing is courtesy of My Home Group Real Estate