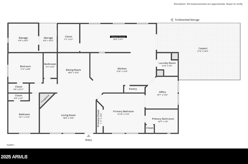
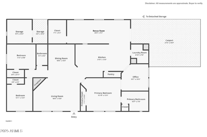
Spacious 1,850 sq ft manufactured home on owned land. NO LOT LEASE. NO AGE RESTRICTIONS. This 3-bedroom, 2-bath home also features a den, laundry room, bonus room, and cozy fireplace. Recent updates include roof (2020), A/C (2017), and laminate flooring (2022). An outdoor storage room with workbench adds convenience, and the location couldn't be better. Right across from the clubhouse with pool and spa, plus school bus pick-up. Park and playground just around the corner. HOA only $125/month (includes basic cable) and RV parking/storage for just $15/month. ADA compliant. This home offers plenty of potential. A great opportunity to personalize and build equity.
Dwelling Type: Residential
Subdivision: DESERT VISTA PLACE LOT 1-227 TR A-L
Year Built: 1995, County: N/A
Listing is courtesy of West USA Realty