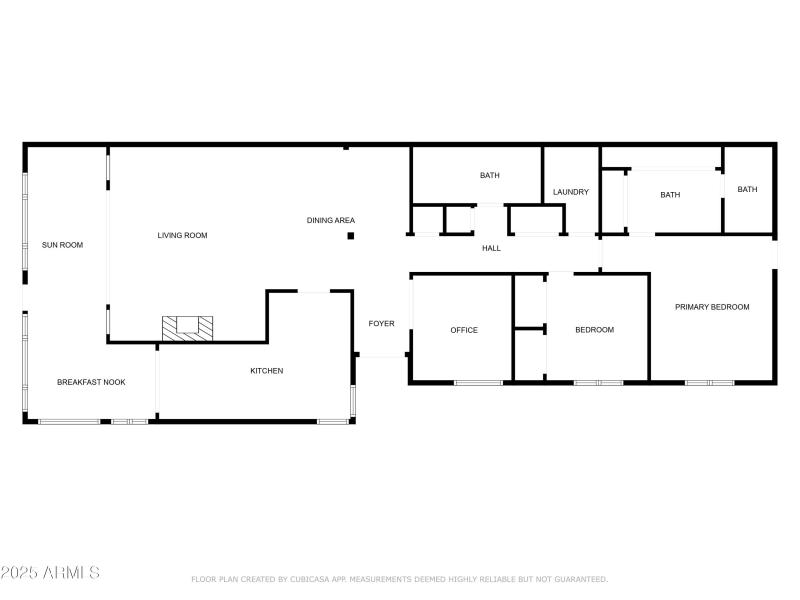
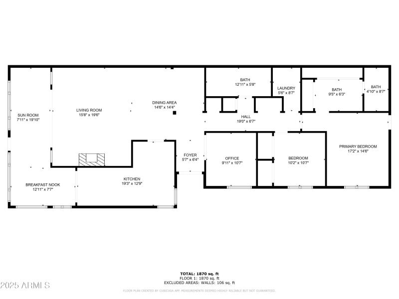
This is the largest townhome in Sun Lakes! 2 bed 2 bath home with office/den backing to Hole 11 in Sun Lakes. Patio was previously enclosed to add living space. The primary bathroom has a stunning updated walk in shower as well. Front faces west so back of property stays perfectly shaded during the heat of the day with no lack of natural in this end unit! Bakers kitchen is a standout feature which is ideal for entertaining or indulging your culinary passions. The new roof will also bring peace of mind for years to come!
Sun Lakes offers a full array of amenities: multiple clubhouses, restaurants, pools and spas, tennis and pickleball courts, fitness center, golf, and walking/biking paths. An active adult community with lots of clubs, events, and opportunities to stay social, active, creative. Golf course views, great space, and lifestyle amenities!
South on Glenburn. Left on Minnesota. Home is in front of you when you hit Berry Brook
Dwelling Type: Residential
Subdivision: SUN LAKES UNIT 11A
Year Built: 1981, County: N/A
South on Glenburn. Left on Minnesota. Home is in front of you when you hit Berry Brook
Listing is courtesy of Century 21 Arizona Foothills
Sign in to your account to continue