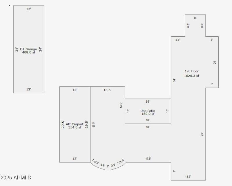
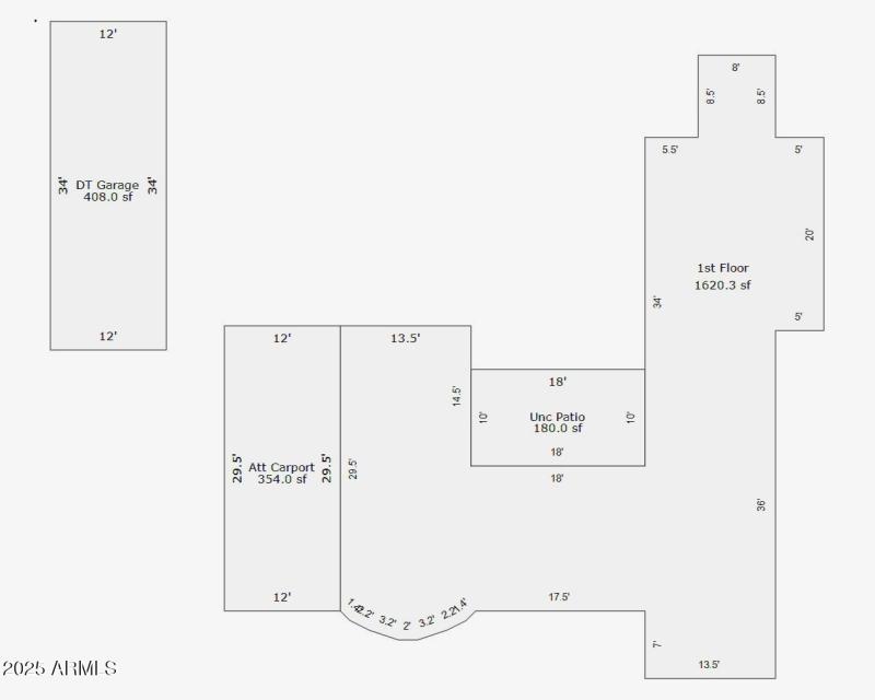
This 1939 FIXER-UPPER Cottage with a Santa Fe influence is screaming to be restored to it's extraordinary past & offers a HUGE PROFIT MARGIN potential! Sitting in a PRIME LOCATION in 85016 Camelback East Village, this property sits on a HUGE LOT & a very quiet street that's ''not a through street.'' The 1,640sf includes a 578sf attached Mother-In-Law suite w/2 separate entries, its own address & separate electric meter & billing, in addition to the 2 bedrooms/1 bath totaling 3 beds/2 baths. The 408sf detached, tandem garage would make the most magnificent guest house bringing the total livable square footage to 2,028 & a 4 bed/3 bath. This property has 2 separate rental income potentials & would make a terrific multi-generational compound. Plenty of room for a pool, RV & toys! The homes in this popular subdivision, Montecito, are virtually all historic. Although it's not a designated historic district, the feel is identical. The home's historic features are just flat out cool: It's impossible not to notice the stunning bay window from the inside and out. Then there are the coved ceilings in the living room, walled archways, original phone nook & an original built-in ironing board.
The large formal dining room off the kitchen shows off the bay window where you can admire some mountain views while dining. The floorplan is very open & very functional.
This is an absolute PRIME LOCATION in the Madison School District! Close to the upscale Biltmore Shopping Center, Uptown Plaza, Arcadia night life, upscale restaurants, clubs, museums, Whole Foods, Sprouts, Natural Grocers, Trader Joe's, Farmer's Markets, Downtown Phoenix, Sky Harbor Airport & SO much more! Make sure to view this diamond in the rough and explore your profit margin potential!
From 16th St, go East on Roma Ave. Property is on your right.
Dwelling Type: Residential
Subdivision: MONTECITO
Year Built: 1939, County: N/A
From 16th St, go East on Roma Ave. Property is on your right.
Listing is courtesy of HomeSmart