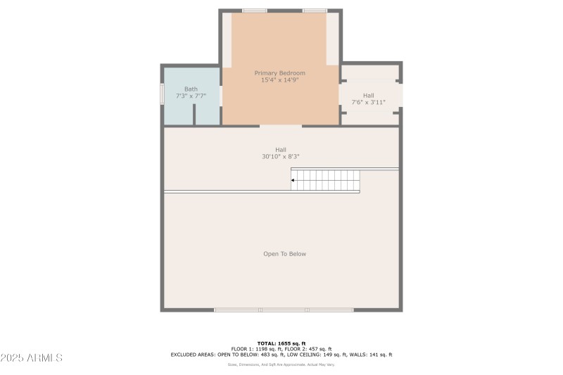
Adjoining the National Forest sits this stunning 1,664 sq. ft. cabin on 4 acres that offers two levels of comfortable mountain living with 3 bedrooms & 2 bathrooms. Updated kitchen with new cabinets & granite. New flooring, sinks, fixtures & water heater. The spacious primary suite features its own private balcony, perfect for taking in the surrounding scenery. Over 1,200 sq. ft. of deck with beautiful open-beam construction & a new roof provides the ideal outdoor living space, complete with custom metal & cable wire railing. Built with quality in mind, the home includes dual-pane windows, spray foam insulation under the crawl space floor, & insulated int. bedroom walls for added comfort. The int. showcases rustic charm with knotty pine walls & knotty aspen ceilings. Offered furnished. Property is 4.47 acres with direct access to National Forest. Large covered deck great for morning coffee and watching wildlife in the front yard.
Recent updates include:
New Floors throughout May 2023
New Cabinets and Granite Countertops throughout May 2023
New sinks, fixtures, door knobs May 2023
New Hot Water Heater May 2024
New Roof December 2024
New Gravel Driveway June 2023
New 8' x 20' Graceland Shed June 2023
New furnishings decor and household goods throughout May 2023
New handrail and additional safety cables on deck June 2024
Automatic float to fill water tank from well May 2023 
 AZ HWY 260 East and Mogollon Dr. Directions: left onto Mogollon Dr., right onto Meadow Trail, left on Lodgepole Rd, left on to Ranch house Rd., right on to Elk Ridge Ln, left toward Elk Pointe left onto Elk Pointe Ln, follow owners sign to home. 
 
                                                        Dwelling Type: Residential 
                            Subdivision: Elk Pointe 
                            Year Built: 1999, County: N/A 
                            AZ HWY 260 East and Mogollon Dr. Directions: left onto Mogollon Dr., right onto Meadow Trail, left on Lodgepole Rd, left on to Ranch house Rd., right on to Elk Ridge Ln, left toward Elk Pointe left onto Elk Pointe Ln, follow owners sign to home.
                        
Listing is courtesy of West USA Realty