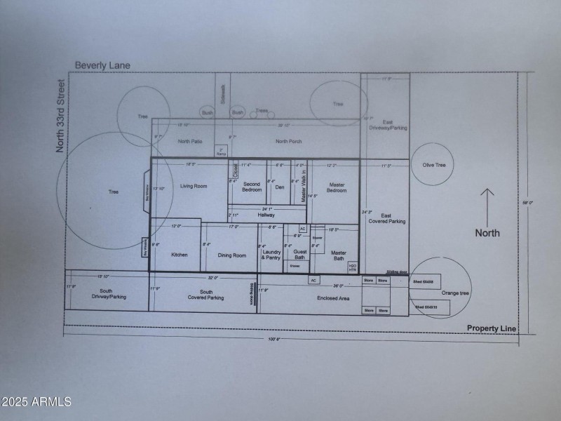
Cute home in fantastic gated Palm Lakes Village, a wonderful 55+ community that you will love! YOU OWN THE LAND AND HOA (hard to come by)! This home offers 2 bedrooms, 2 baths and a den, new paint, new flooring, new kitchen appliances and a newer hot water heater! Roof and other systems recently checked and in great condition. The primary bedroom has a larger closet than most. Storage..did I say storage! 2 sheds and a large enclosed work area! 2 covered carports (lots of parking) and on a corner with beautiful shade trees! You will love the amenities (so much going on here) and close to shopping, restaurants and freeway! Must see!
South on 32nd St TO PALM LAKES VILLAGE (East side of 32nd St) Go through the gate and take first left to 33rd St. Go East and home is on the right on a corner lot.
Dwelling Type: Residential
Subdivision: PALM LAKES VILLAGE 4
Year Built: 1974, County: N/A
South on 32nd St TO PALM LAKES VILLAGE (East side of 32nd St) Go through the gate and take first left to 33rd St. Go East and home is on the right on a corner lot.
Listing is courtesy of Realty ONE Group