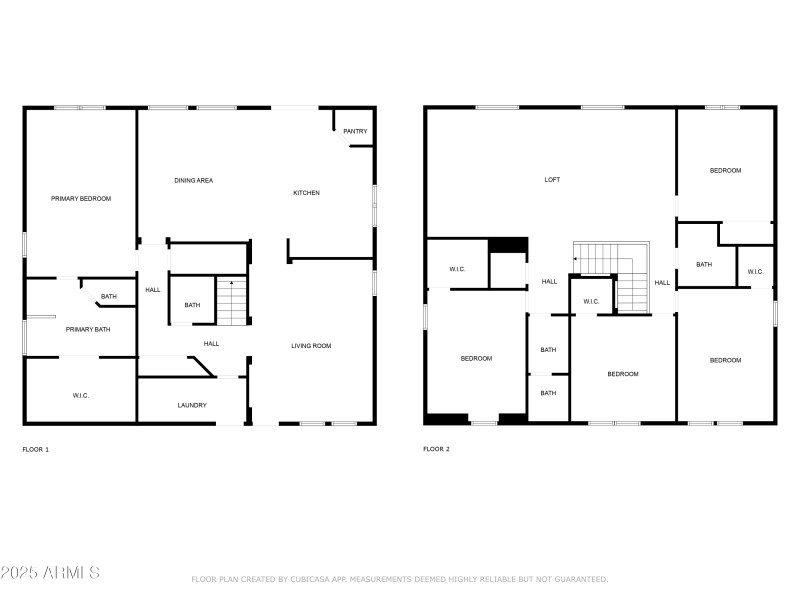
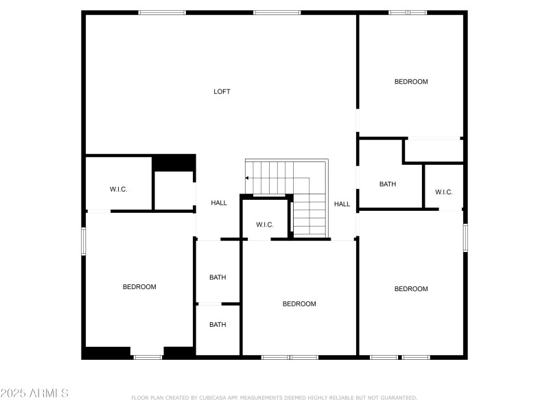
This home is eligible for a 1% Down Payment Grant + Rate Buy Down*. Discover the space you've been looking for in this beautifully appointed 5 bedroom Tartesso home. Offering an ideal blend of comfort and value, this residence features expansive living and family rooms designed for gathering, plus a versatile loft that can easily transform into a 6th bedroom, home office, or the ultimate game room.
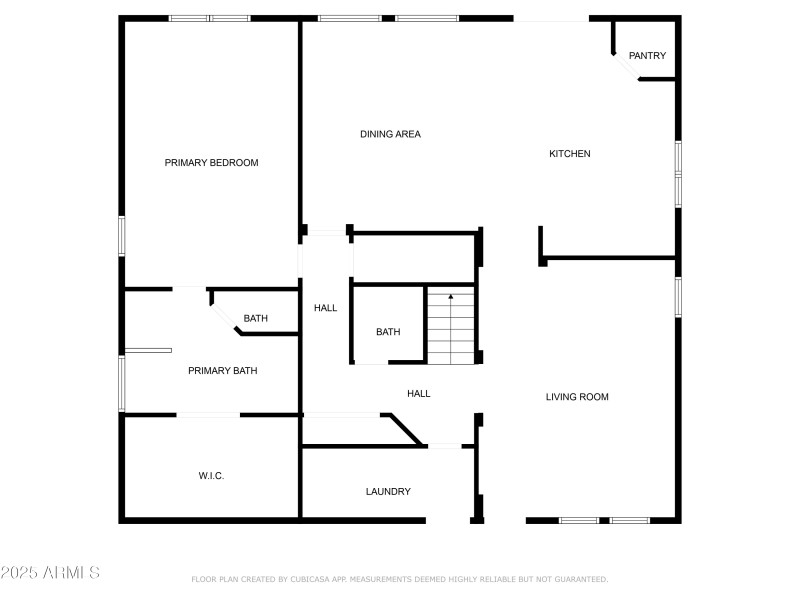
The primary suite is thoughtfully located on the main level, creating a private retreat complete with dual vanities, a soaking tub, separate shower, and a walk-in closet that will not disappoint. Generously sized secondary bedrooms provide room for everyone. Step outside to a fully landscaped backyard that's ready for your personal touch, whether you envision an entertainer's paradise or a peaceful desert oasis.
The HVAC systems have been serviced, the interior has been professionally cleaned, and the home is move-in ready. A home warranty will also be included, providing peace of mind.
Seller is including a full interior paint refresh, giving you the opportunity to choose the color palette that best reflects your style and make this home truly your own.
Tartesso is a fast growing community where your dollar stretches further, making this competitively priced home an incredible opportunity.
Dwelling Type: Residential
Subdivision: TARTESSO UNIT 2A
Year Built: 2006, County: N/A
Listing is courtesy of My Home Group Real Estate