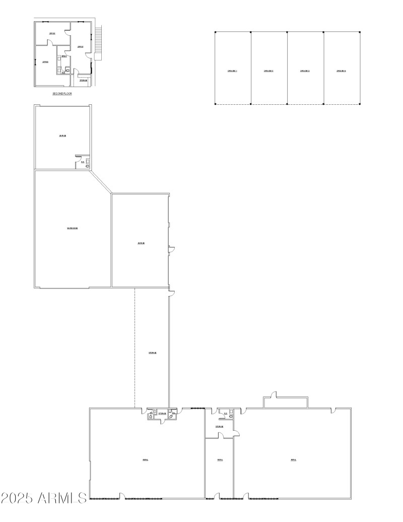
Located near Grand, I17, & I10. Zoned I-1, Over 1 1/2 acres. 5 structures: block wall building, wood/steel- back buildings. 3 lrg Covered stalls w/3 phase Air, Water, Power, & Gas. Interior gated yard area S side & N side of middle buildings. Perfect for warehousing, manufacturing, industrial, as well as retail offices incldng restaurant/bar w/plenty parking front & back. Back gated w 2 large roller gates. NEWER ROOF, NEWER AC units. Front bldg set up currently for gray scale space w/bathrooms, 2 sep offices, & end unit auto/ mechanic area w 1 bay & garage, yard, large warehouse w loft offices/storage. Back building w/4 large bays, 2 story building w/office. All equip w/bathrooms, sep power met & AC, water usage meter- rest/bar. Property will be cleared before buyers possession.
From McDowell and 27th Ave Hed North on 27th Avenue property is .3 miles on the West side of the 27th Ave
Dwelling Type: Comm/Industry Sale
Subdivision: N/A
Year Built: 1965, County: N/A
From McDowell and 27th Ave Hed North on 27th Avenue property is .3 miles on the West side of the 27th Ave
Listing is courtesy of US Investment Realty, LLC
Sign in to your account to continue