Welcome to 2305 Roadrunner, a wonderfully appointed, turn-key vacation rental with a successful track record. This 4 bed/2.5
bath home has a wonderful mid-century flare with over $40,000 in thoughtfully designed upgrades and improvements to make it a hyper-successful
vacation rental. Step inside and be swept away by the soaring T&G ceilings, stone fireplace, clerestory windows, & wrap-around deck. Bring your
suitcase or immediately begin renting this property as the furniture, games, & housewares all convey! Future bookings to convey as well (if desired), at
no cost to the Buyer - instant cash flow! This home is situated in the quiet and peaceful neighborhood of Sedona Meadows and is only minutes away from
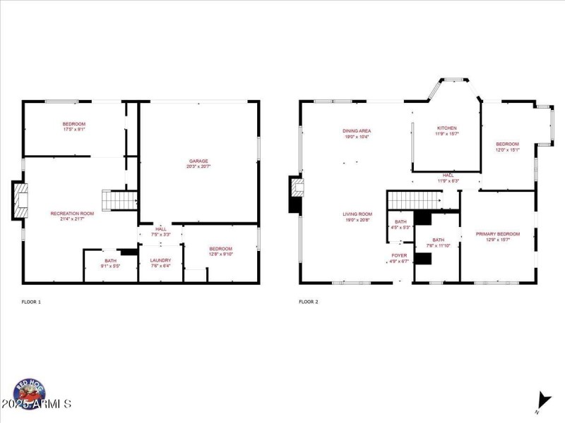
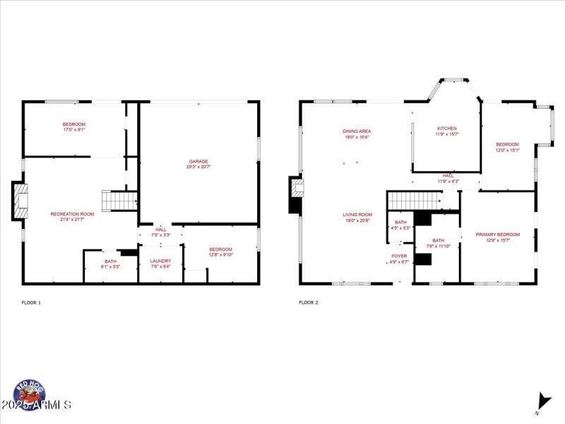
Sedona's best restaurants, grocery stores, & hiking trails. See More... The upper floor features a kitchen with granite countertops and effortless flow between the kitchen, dining, and living room to create a great, connected entertaining space. Snap your photo next to a custom, floor to ceiling mural of Sedona's most iconic rock formation - Cathedral Rock. This entire portion of the home is encased with a large wrap-around deck that grants you ample views and supports outdoor dining. This home truly makes outdoor/indoor living seamless. The primary bedroom is exceptionally spacious and features soaring T&G ceilings and an en-suite bathroom. Guest bedroom 2 enjoys abundant light from windows on all sides, and has a darling reading nook tucked under a large picture window. A half bath adjacent to the foyer serves guest bedroom 2.
Downstairs, a tricked-out Pixar Cars-themed living room with a bespoke mural, additional racecar beds, and a fireplace will surely ignite the kids' imagination! Continuing on this floor, there are two additional guest bedrooms, a full bath, a laundry room, and a 2 car garage that is currently being utilized as a game room. Amenities in the game room such as a ping pong table, darts, foosball, and an additional TV lounge will certainly attract vacation guests! Guest bedroom 3 features modern farmhouse decor and a sliding glass door that leads out to its own private patio. Guest bedroom 4 offers ample privacy and easy access to the downstairs living room and game room.
With two stories of endless entertainment space and privacy, this home promises to appease anyone who steps in. Tour this home and experience why it's a show-stopping vacation rental!
From SR 89A South on Stutz Bearcat. Left on Roadrunner Rd. Home is on the Right.
Dwelling Type: Residential
Subdivision: SEDONA MEADOWS
Year Built: 1979, County: N/A
From SR 89A South on Stutz Bearcat. Left on Roadrunner Rd. Home is on the Right.
Listing is courtesy of RE/MAX Sedona