Discover true Desert Charm in this Santa Fe style ranch home, perfectly situated on 1.1 acres with sweeping mountain views and plenty of room to live the lifestyle you've been dreaming of. Designed with both comfort and function in mind, this property is ideal for horse lovers and those who appreciate wide-open space.
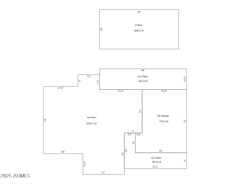
Equestrian amenities include lighted horse stalls, secure no-climb fencing, a tack barn with storage, water access, and a pull through corral. The property also features an RV hookup and a huge three-car garage for all your vehicles, tools, and toys. Inside, you'll find thoughtful upgrades such as a reverse osmosis system, shuttered window coverings, tile flooring, and a newer HVAC system (on a bi-annual maintenance contract) for peace of mind.
Step outside and enjoy beautifully designed desert landscaping, a fenced, raised-bed garden, and an expansive covered patio. Gather with friends and family around the charming kiva fireplace, where cozy evenings are enhanced by the panoramic mountain views in the distance the perfect blend of comfort and desert serenity.
Located in the sought-after North Valley; you'll love the abundance of space, breathtaking views, and easy access to local amenities the perfect blend of tranquility and convenience.
From Carefree Hwy: Go north on 16th Street, then East (right) onto E La Salle Rd, then take a left onto N 16th Place. Follow to end of road - (last house on the right).
Dwelling Type: Residential
Subdivision: LA SALLE HEIGHTS
Year Built: 2001, County: N/A
From Carefree Hwy: Go north on 16th Street, then East (right) onto E La Salle Rd, then take a left onto N 16th Place. Follow to end of road - (last house on the right).
Listing is courtesy of Century 21 Arizona Foothills