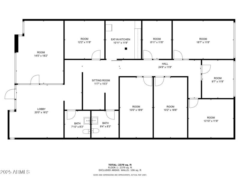
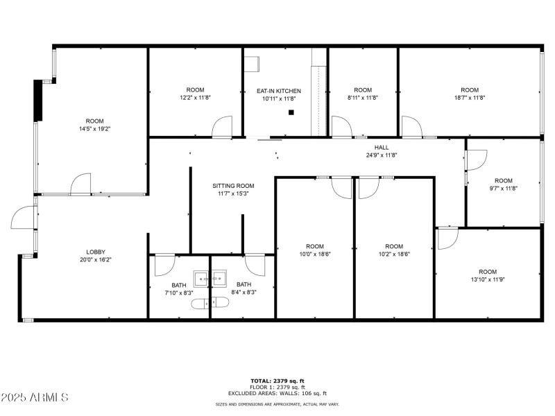
Discover the ideal space for your business in this well-designed office condo for rent! The layout includes 6 private enclosed offices, a glassed conference room with a door for privacy, and an open work/copy room area perfect for collaboration. A dedicated secretary space and separate kitchen add to the efficiency of the floor plan! For employee and client convenience, the office features two coed restrooms with grab bars. A nice break room with cabinets provides a comfortable spot to recharge during the day. Enjoy the benefit of ample parking for staff and visitors, as well as proximity to retail and dining options nearby. This office condo is a professional, accessible, and highly functional choice for growing businesses. Seize this opportunity!
Head west on E Baseline Rd, Turn right to access Pierpont Commerce Center. Property will be on the right.
Dwelling Type: Comm/Industry Lease
Subdivision: PIERPONT COMMERCE CENTER CONDOMINIUM
Year Built: 2002, County: N/A
Head west on E Baseline Rd, Turn right to access Pierpont Commerce Center. Property will be on the right.
Listing is courtesy of Distinguished Properties