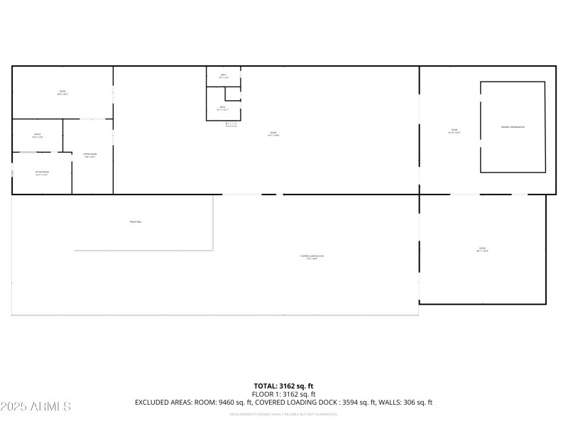
TREMENDOUS OPPORTUNITY AND VALUE! Almost 16,000 sq ft under roof! Apprx 12K sq ft interior space and apprx 3,600 sq ft loading bay. Huge warehouse space in strategic Phoenix location is impossible to find. Clean Phase 1 Environmental in July 2023. 2 bay covered semi loading dock with (2) 12 x 12 rolling doors and (1) 12 x 16 sliding door. Fenced parking - 8 spaces. Property is perimeter fenced as well. Complete interior insulation installed - 2023. Commercial kitchen with both a 20 x 25 walk-in freezer and 20 x 25 walk-in cooler. Office Space! Retail Space! Showroom Space! (2) restrooms - ladies room has a shower and washer / dryer. This property is clean, clean, clean. ** WATCH VIDEO! ** Security system w/ cameras. Outstanding location! Easy access to I-17, Hwy 60 and I-10.
Take W. Indian School Rd. to N 39th. Ave. Go north to W. Montecito Ave. Turn left (W). Go to N 40th. Ave. Turn left (S) go to property on east side of the road.
Dwelling Type: Comm/Industry Sale
Subdivision: N/A
Year Built: 1971, County: N/A
Take W. Indian School Rd. to N 39th. Ave. Go north to W. Montecito Ave. Turn left (W). Go to N 40th. Ave. Turn left (S) go to property on east side of the road.
Listing is courtesy of Down-Home Realty, LLC
Sign in to your account to continue