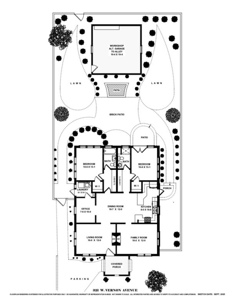
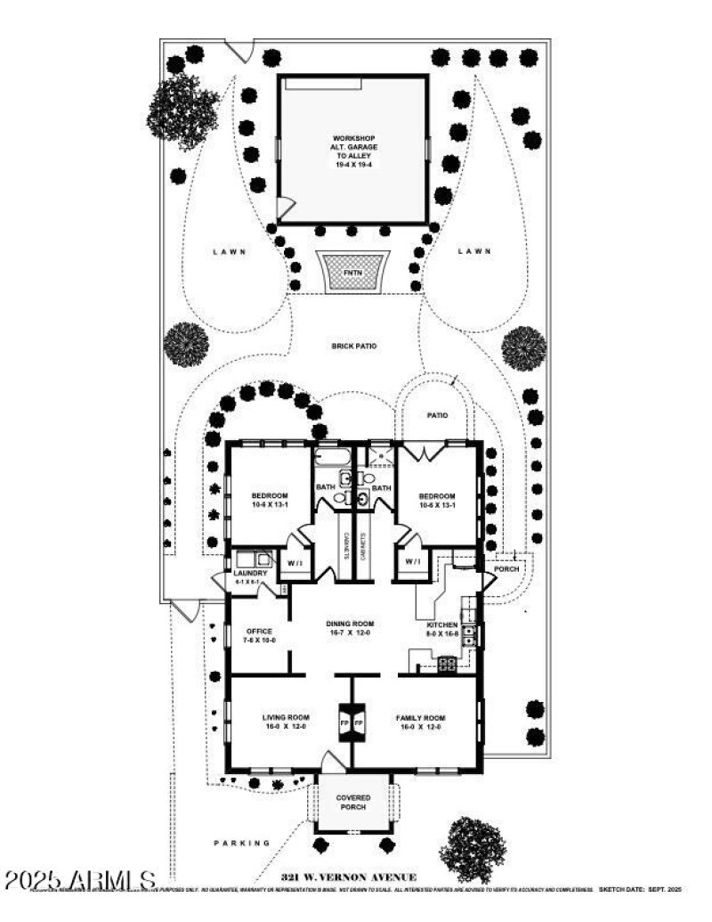
This stunning red-brick Tudor sits proudly on one of the best blocks in popular Willo Historic District! Thoughtfully reimagined inside and out by current owner, a renowned local interior designer, this home blends timeless historic charm with sophisticated design. The inviting floor plan features both a formal living room & a spacious family room—each with/ a charming brick fireplace. The kitchen flows seamlessly into a large dining room, perfect for entertaining. Two private bedroom wings, each with their own bathroom, provide comfort and privacy. Historic details abound, including original hardwood floors, wood-framed windows, and built-in closets/cabinetry in both hallways. A 400' detached structure offers incredible potential—convert back into a rear-entry 2C garage or guest casita! Outside, lush landscaping showcases mature Tipu, Ficus, and Cypress trees, complemented by a tranquil fountain and brick and stone patios for a private garden oasis. Don't miss this rare opportunity to own a true architectural gem in one of Phoenix's most beloved historic neighborhoods.
West on Thomas to 5th Ave, South on 5th Ave to Vernon, East on Vernon
Dwelling Type: Residential
Subdivision: FAIRVIEW HOMES
Year Built: 1929, County: N/A
West on Thomas to 5th Ave, South on 5th Ave to Vernon, East on Vernon
Listing is courtesy of Compass