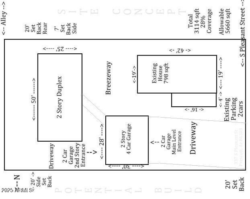
Incredible investment opportunity just one block from Prescott's iconic Mt. Vernon St! This property features City-approved concept plans for a high-density multi-family development—ideal for college rentals or short-term stays like VRBO. Just a short walk to Downtown Prescott, the existing 1954 Sears and Robuck catalog - 1 Bedroom 1.5 Bath home allows for immediate rental income while you develop the remaining potential. Plans include a fourplex and a 2-story detached garage, using only 28% of the allowed 50% lot coverage. Enjoy mature trees, native landscaping, and beautiful views of Thumb Butte in a quiet, convenient location close to schools, work, and the Prescott Courthouse Square. Build using the pre-approved concept or bring your own vision. Buyer to verify their own permitting requirements. Seller requires a drive-by prior to scheduling a showing and listing agent must accompany--this is one you must see to appreciate the possibilities!
From Route 69 take Gurley Street West towards downtown. Left on South Pleasant Street past Carlton Street to property on the left/East side. No Real Estate Sign or lockbox on property, Seller will be there for all showings.
Dwelling Type: Residential
Subdivision: BASHFORD TRACT
Year Built: 1954, County: N/A
From Route 69 take Gurley Street West towards downtown. Left on South Pleasant Street past Carlton Street to property on the left/East side. No Real Estate Sign or lockbox on property, Seller will be there for all showings.
Listing is courtesy of Code of the West