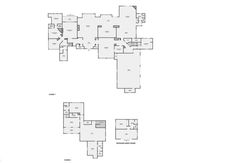
Positioned on one of Arcadia's most coveted and prestigious streets, this French-inspired Mediterranean estate stands as a true ''one-of-one'' residence of global caliber. Encompassing over 10,000 sq ft on 1.8 acres, and built by Stellar Development with uncompromising attention to detail, the home is a showcase of Old World artistry fused with modern refinement. Every element reflects bespoke craftsmanship: reclaimed antique hickory floors from Pennsylvania, Venetian plaster walls, a soaring double barrel-vaulted dining room, hand-scraped cabinetry, and a patio of French barrel-vaulted brick, custom cut on-site. Subtle touches—such as an antique horse trough garden sink—infuse timeless charm. The estate features... 5 bedrooms and 7 bathrooms, including dual His and Her primary baths, a sophisticated office overlooking, and access to its own serene courtyard. The state-of-the-art theater offers an automated retractable wall; when OPEN, the theater room extends into your everyday living space in addition to an upstairs game room with three private ensuite suites.
The grounds are as meticulously curated as the interiors, with mature trees, manicured lawns, and raised gardens surrounding a shimmering 745 sq ft glass-tiled pool. An 864 sq ft guest house extends the hospitality, while iconic Camelback Mountain creates an unrivaled backdrop, evoking the romance of Tuscany.
An estate of this pedigree is exceedingly rareand an irreplaceable expression of elegance, craftsmanship, and exclusivity in the heart of Arcadia.
From CAMELBACK, S ON JOKAKE to ARCADIA LN - Set back on North Side of Street
Dwelling Type: Residential
Subdivision: ARCADIA MANORS
Year Built: 2008, County: N/A
From CAMELBACK, S ON JOKAKE to ARCADIA LN - Set back on North Side of Street
Listing is courtesy of Compass
Sign in to your account to continue