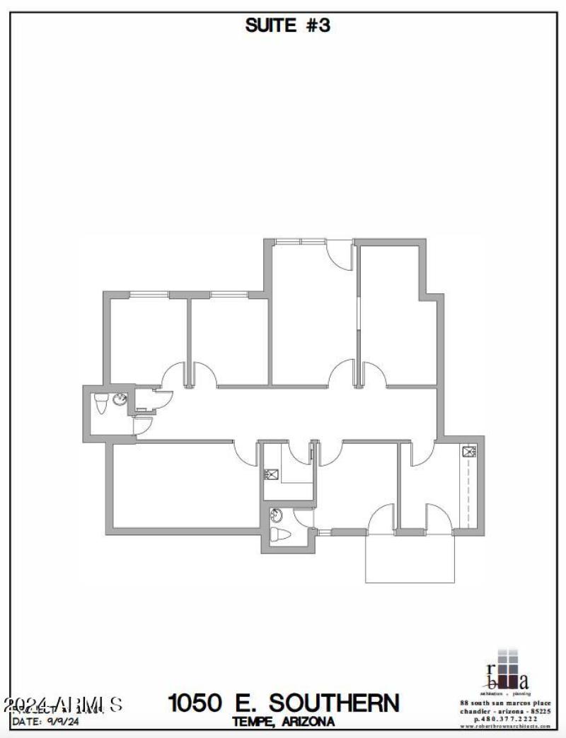
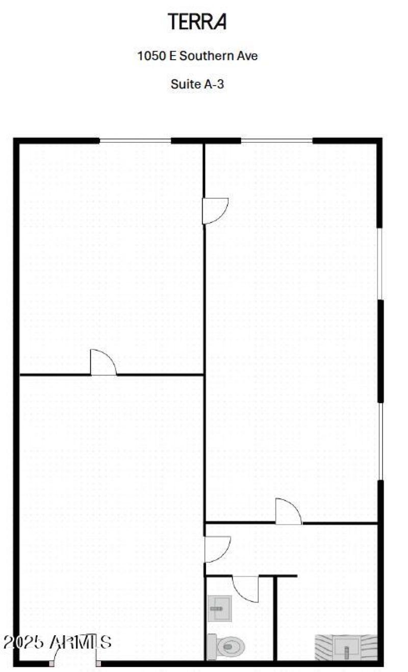
PRICE SHOWN INCLUDES ONE MO FREE PRORATED! RENOVATIONS COMPLETE and FLEXIBLE LEASE TERMS! 1050 E Southern Ave is a quaint garden-style office complex in the heart of Tempe. This price shown is for 824 SF. Perfect for healthcare, wellness, financial services, real estate, professional services and more. Enjoy the convenience of covered parking, high-speed internet, private restrooms, and beautifully landscaped surroundings with mature trees that create a serene and welcoming atmosphere. Ideally situated at Southern Avenue and Rural Road, the property has excellent accessibility. Located just 1/2 mile north of the US 60, 2 miles west of Loop 101, and under 10 minutes from Sky Harbor Airport. The property is also less than a 5-minute drive to Arizona State University and Downtown Tempe
East of the North East Corner of Rural & Southern
Dwelling Type: Comm/Industry Lease
Subdivision: N/A
Year Built: 1973, County: N/A
East of the North East Corner of Rural & Southern
Listing is courtesy of Pillar Realty & Investments, LLC