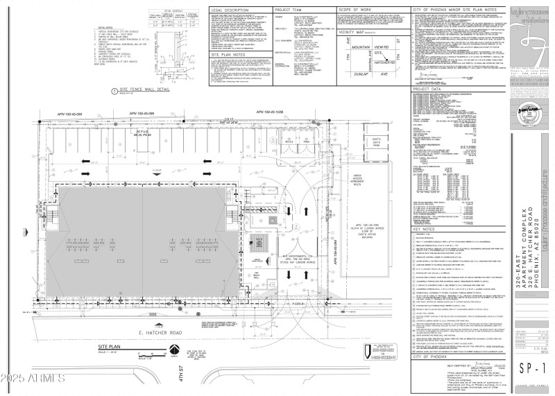
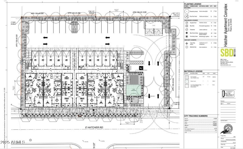
Plans are in line to be approved for this shovel ready development through the City of Phoenix. This 2 story, 20 unit multi-family project is zoned as R-5 High Density Multi-Family located within the Hatcher District Overlay that allows restaurants, office, and retail within new developments. The current unit mix is very diverse to make this a unique project for the area. There are 10 garages, 20 additional surface parking spaces, 4 three bed/two bath, 6 two bed/two bath, 2 one bed/one bath, and 8 studios. The development consists of 16,396 square feet of living area. Horizontals and grading and drainage are ready to go. Buyer to pay for permits with their general contractor of record.
From AZ-51 and Northern Avenue, West on Northern, North on 7th Street, West on Hatcher to property.
Dwelling Type: Land
Subdivision: TENGEN PLACE ADDITION
Year Built: N/A, County: N/A
From AZ-51 and Northern Avenue, West on Northern, North on 7th Street, West on Hatcher to property.
Listing is courtesy of Grayson Real Estate