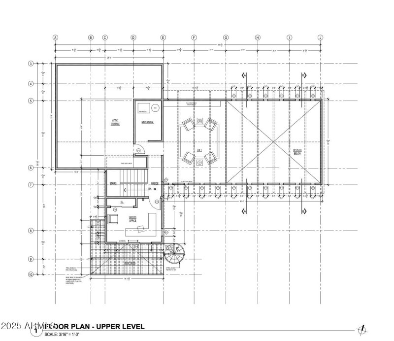
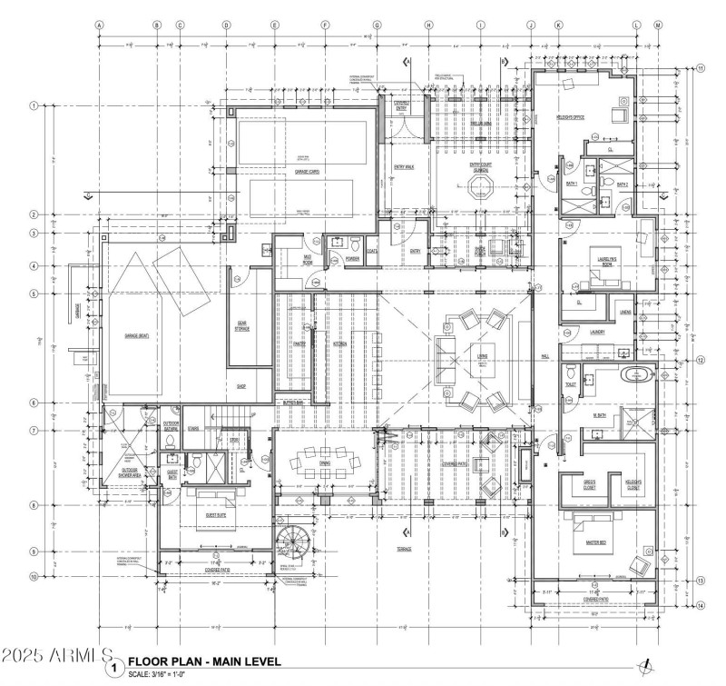
Want to build custom, but want to skip the long process of getting HOA and city approval? This gorgeous Verrado lot is ready to be built on- conditionally approved plans, grading permit ready. Just pick your builder! Plan available for 4253 SF 5 bedrooms/4.5 interior baths, plus additional outdoor pool bathroom. 4+ car 1258 SF garage. Choose to build the home as planned, or personalize this gorgeous home. Beautiful Spanish Colonial style, with modern finishes. Stunning courtyard at entry, soaring ceilings with exposed beams, flex spaces that you can choose for your use. Enjoy mountain views from your balcony overlooking your future backyard pool. This lot has so much potential, and leg work is complete, so you can move forward minus all the obstacles. Located in Verrado, enjoy all the amazing amenities of the community, which offers gorgeous mountain views, hiking trails, golf, pools, fitness center, over 80 parks, restaurants, entertainment and so much more. Easy access to highways, and just 30 minutes outside of Phoenix.
Verrado Way North to Sunrise Lane. West on Sunrise Lane to Regent Street. North on Regent Street to Sage Hill Rd. West on Sage Hill Rd, located on the South side of Sage Hill Rd
Dwelling Type: Land
Subdivision: VERRADO PARCEL 5.505
Year Built: N/A, County: N/A
Verrado Way North to Sunrise Lane. West on Sunrise Lane to Regent Street. North on Regent Street to Sage Hill Rd. West on Sage Hill Rd, located on the South side of Sage Hill Rd
Listing is courtesy of 3rd Base Realty Group LLC